Skip to main content

Taking the Soviet Union Apart Room by Room: 5. Socializing

Taking the Soviet Union Apart Room by Room
5. Socializing
  • Show the following:

    Annotations
    Resources
  • Adjust appearance:

    Font
    Font style
    Color Scheme
    Light
    Dark
    Annotation contrast
    Low
    High
    Margins
  • Search within:
    • Notifications
    • Privacy
  • Project HomeTaking the Soviet Union Apart Room by Room
  • Projects
  • Learn more about Manifold

Notes

table of contents
  1. List of Figures
  2. Acknowledgments
  3. Romanization
  4. Glossary
  5. Introduction
  6. 1. Remodeling
  7. 2. Sleeping
  8. 3. Eating
  9. 4. Cleaning
  10. 5. Socializing
  11. Conclusion
  12. Notes
  13. Bibliography
  14. Index

5 SOCIALIZING

Housing is always more than just housing.

—David Madden and Peter Marcuse, In Defense of Housing: The Politics of Crisis

In his 1961 Congress of the Communist Party speech, Khrushchev announced that building communism was supposed to be finished in twenty years.1 Communism never quite got built, but the Soviet state did succeed in constructing millions of housing units, if not communist then modernist in form and spirit, and in dramatically modernizing the domestic life of urban citizens.2 Just like with the rest of the modernist housing experiments, this one also did not go exactly as planned.

A modern, “functional” interior is “destructured, fragmented into its various functions.”3 The revolutionary-scale, twentieth-century effort to rethink and restructure domestic space materialized in the quintessential modernist home—an apartment block. Yet a home still did not abide by the meticulously structured scenarios established by its creators. The home transcended the preexisting conventions of a dining room or a bedroom, of a room altogether, of privacy, of a family. In fact, it often transcended the limits of an apartment itself as the functions contained inside a home spilled out past its walls and into the in-between spaces of hallways, attics, basements, courtyards, and streets that surrounded a single residential unit.

This chapter aims to outline the spaces of socialization in the late- and post-Soviet apartment, the semiprivate or semipublic spaces that surrounded it, and the limits of control exerted by the state and the residents onto their extended homes.

The Absentee State

During the Soviet era, housing and the home were an area of primary state concern and, hence, unprecedented state control. Of course, there was also the arms race and the space program, but those were matters of international prestige. Internally, housing was one of the most critical issues to the Soviet state from its very beginning in 1917, with the placement of working-class families in former bourgeois apartments. The issue continued through Khrushchev’s housing campaign starting in 1957 and all the way to the return of the housing crisis4 and the modest attempts of housing privatization during the belated perestroika reforms of the late 1980s. The collapse of the USSR in 1991 created a completely new reality—a reality where the newly independent states were concerned with regional conflicts, hyperinflation, collapsed production, and belated salaries. Housing, a former priority and pride, had to step back.

Control and concern over the housing conditions and the domestic life of post-Soviet citizens became virtually nonexistent in the first years after 1991. Post-Soviet states did undertake property reforms; however, it is important not to overestimate their role in the reformation of ordinary residential spaces.5 The participation of the state in matters of housing virtually stopped with the privatization campaign and unsuccessful attempts to introduce Western housing market models.6 The self-removal of the state from matters of housing in the former USSR is particularly visible in comparison to a different post-socialist country: the former German Democratic Republic (GDR), where after unification generous state investments were made into modernizing socialist-built apartment blocks, as well as new housing construction.7 Furthermore, instead of a privatization campaign, the German state provided tax credits for single-family home construction. In the former East Germany, these tax credits, coupled with the loss of industrial jobs and increased rents, resulted in extremely high vacancy rates in multi-unit housing, even in major cities.8 This situation, however, is rather unique for the unification of Germany and is unlike anything that happened in the post-Soviet metropolitan cities.

In the former-Soviet cities, changes first and foremost came from the private individuals and private investors rather than the state. Perhaps even more telling than the lack of working initiatives is that many housing construction regulations simply did not change on paper throughout the 1990s.9 The ones that did change were heavily based on the old Soviet Sanitary Norms and Regulations.10 The housing reality, on the contrary, changed dramatically: the old building norms were established to suit state-owned social housing, where the most important parameter was the upper value of apartment dimensions and areas. After the Soviet Union, these upper limits became meaningless since the absolute majority of housing being built was no longer social housing allocated by the state. This is not to say that compact apartments stopped being built, but their construction was now determined by a projected customer demand. Bigger apartments were being built for a different customer base.

What mattered more than the property reforms was the disappearance of institutional supervision over the transformations undertaken in individual apartments. This unexpected (but quite quickly accepted) freedom led to a curious paradox. Prior to the late-1980s, moving partitions and altering walls in apartments was not a popular, widespread practice due to the many reasons described in chapter 2. However, in the 1990s, it became extremely widespread, sometimes in grotesque forms. State institutions rarely intervened until something went terribly wrong, like in the case of a historic apartment building that partially collapsed on a central street of Kyiv in 2003, thankfully not killing anyone. Back then, newspapers attributed this collapse to the massive replanning done to transform one of its stories into a hotel on the second floor of this six-story building.11

In many post-Soviet states, a centralized system of documentation for such changes was not introduced right away. For instance, in Ukraine this system did not become formalized until 1997.12 An architect interviewed for this study recalled that back in the early 1990s, no organization had monopoly over the registration of apartment layout changes, and several organizations could offer such services.13 This lack of monopoly on replanning registration meant that the registration may have been done rather cheaply and in the spirit of the Soviet and post-Soviet informal economy: without engineer- or architect-approved blueprints, based solely on the experience of construction workers. Additionally, this meant that before 1997, amid the institutional confusion, an apartment owner could do anything they wanted inside their home and sometimes even sell it without having to report the changes to anyone at all. In different post-Soviet states, replanning recording was monopolized by existing or new institutions in different years. However, in most megacities, registration procedures were established no later than the first decade of the 2000s, and the process of recording apartment changes has been centralized since.

In the Soviet Union, control over the state and the preservation of housing funds was performed by the Bureau of Technical Inventory (Biuro tekhnicheskoi inventarizatsii or BTI), analogous to the Recorder of Deeds. Prior to 1985, the BTI routinely took care of urban and rural housing and nonresidential structures; it also planned maintenance and registered property rights for these buildings. During Soviet times, the latter appeared to be a relatively simple task since, even after the introduction of housing privatization in the late 1980s, 70 percent of the urban housing stock was still owned by the state or state institutions.14 The mass privatization and the form of real estate market that appeared after the collapse of the USSR expectedly overwhelmed and hindered the work of the BTI, creating a breeding ground for long waiting times and corruption. With time, this complex procedure gave way to simplified documentation and databases, but not until the first two decades of the 2000s.15 At the same time, despite the privatization of individual apartment units, the shared structure of every apartment building remained the responsibility of state-governed Housing Maintenance Offices (Zhilishchno-ekspluatatsionnaia kontora or ZhEK).16

This extreme freedom to execute individual apartment remodeling without supervision from any authority and no serious legal effects did not last long but produced a substantial number of urban legends and accidents. While this study did not particularly concentrate on urban folklore, such stories unavoidably came up in the interviews with apartment dwellers, architects, and construction workers alike. To avoid mentioning those would not do justice to the spirit of the era, so it is worth citing one.

A current-day apartment owner, who earned extra money as handy worker when he was a college student in the 1990s, recalled a case of a client who accumulated several apartment properties and in 1997 decided to remodel them to attract higher-class renters. The apartment owner requested that part of the outside loadbearing wall be demolished between the kitchen and the balcony to make the kitchen feel bigger. The builders refused, explaining that the wall was supporting the roof and that a metal beam would be necessary to fortify the wall if its portion was to be taken out. The apartment owner then found discarded tram rails in the courtyard next door and insisted that construction workers install those instead of the beams, which she considered to be too expensive. “They were extremely heavy. We pulled them all the way up to the fifth floor. How, I do not know.”17 To install the first one, the apartment owner had to invite all male family and friends to help the construction workers lift it up to the top of the wall opening. To pay for their services, she threw a major feast. The second beam was never installed, as the apartment was sold before another opening that required a beam was cut. The workers refused to pull it back down from the fifth floor, citing its extreme weight and leaving the new owners to deal with a tram rail in their newly acquired home.

This story was not in any way an isolated incident: makeshift solutions to major apartment remodeling were widespread. Presently, it is impossible to know how many of the existing apartments were changed throughout the Soviet and post-Soviet years since only a portion of the changes were formally registered with the BTI. Apartment owners who did not foresee a need to sell their property or otherwise change its ownership in the near future often did not report the changes that they made, particularly if those changes went completely against the established rules. An interviewee for this study, together with her husband, combined two apartments on the same floor of a prefabricated panel apartment building: “We did it all by ourselves. We only have the engineer’s conclusion from Gosstroi (Ministry of Regional and Ministry for Regional Development, Building and Housing of Ukraine).” This bureaucratic conclusion indicated that the plan to combine two apartments was structurally sound. The interviewee continued: “We were not officially married then. And there was some weird regulation that one family could only buy one apartment [in the building]. So as the owners of two separate apartments, we have not changed anything [in the paperwork] because in our county back then it would have been very difficult, if not impossible. And then all of it became irrelevant because we had no plans of selling it.”18

Another interviewee simply explained partition removal in the 1990s as follows: “We did not need to get any permissions; back then everybody did everything themselves.”19

In practice, if a replanned apartment was not being sold or inherited, or if neighbors did not extensively complain about the noise and procedures of remodeling, authorities did not monitor what was going on in individual apartments. However, if remodeling resulted in damage to the overall apartment building structure, particularly when accompanied with human victims, it could result in an administrative or a criminal court case. Yet many cases of extreme building damage did not come from individual apartment remodeling but rather from commercial space remodeling on the first floors of apartment buildings.20 This had to do with an inherent quality of apartment housing—because the load of the rest of the structure was largest on the first-floor walls, massive layout transformations on the first floor could do the most damage to the entire building. Transformations inside individual apartments on upper floors, on the contrary, produced minimal damage to the overall structure.

Socializing in the Home

Apartment layouts, of course, were not the only realm of life where the previous systems of control were eliminated or suspended due to the collapse of the Soviet state. The political and social lives of post-Soviet subjects experienced a similar removal of all former restrictions. Previously impossible public protests became a norm, private trade took over the city streets, the use of public space by youth subculture groups became less persecuted, and most importantly for this work, the forms of socialization in the home and semiprivate spaces changed.

These changes came in two seemingly opposing physical forms in the 1990s and the first decade of the 2000s. On the one hand, the residents of post-Soviet apartments replaced their old wooden or dermatin-sheathed (a Soviet type of faux leather) doors with the metal ones, and then even bulletproof metal doors, seemingly turning their apartments into impregnable fortresses. On the other hand, the liminal, semiprivate spaces of courtyards, hallways, basements, and sometimes even attics and roofs of these same apartment buildings became improvised social spaces for many members of the post-Soviet societies.

Anecdotally, many scholars of the Soviet and post-Soviet periods have told me they felt the introduction of heavy apartment doors was a sign of the apartment spaces becoming more private, where the understanding of private is in line with the logic of privatization: alienated from the state and individually controlled. However, the situation was more nuanced and includes both a loss of control over semiprivate space and an attempt to regain control over the security of private spaces and private belongings—a sense of security that was compromised after the collapse of the USSR. The following paragraphs describe and exemplify these two simultaneous processes, as well as the restoring force that determined the spatial practices in those spaces in the early post-Soviet decades. But before turning to the complex dynamic between the public and private spaces of a post-Soviet apartment building, let us first establish a definition of spaces of socialization inside an apartment.

The space of socialization in the home has in many ways already been outlined in the previous chapters. Through the boundaries and overlaps of the other practices—sleep, eating, and hygiene—the spaces of socialization become tangible, if not apparent. That is no accident. Sleep, cooking and dining, and hygiene frequently occupied the primary role in a domestic setting, while socialization may have happened parallel to eating at the dinner table or during the day in the same space that would host sleep at night. In fact, the term “living room” did not emerge as a name for a room with a specialized function. In eighteenth-century American working-class homes, “living room” defined the space “in which cooking, eating, and socializing combined with income-producing work and even sleeping.”21 However, in the twentieth century, particularly with the post–World War II reemergence of modernist design principles, a space dedicated solely to socialization and leisure started being seen as a matter of social well-being. In the United States, a definitive idea of a place for domestic socialization and leisure came with the establishment of the postwar family room in single homes.22 A similar shift took place in postwar Great Britain, where the 1960s return of modernist design and the introduction of central heating resulted in an open plan “democratic” living room in the state-built public housing.23 Although such a specialized living room was a product of modernist paradigms, it was not equally represented throughout all global modernisms, the Soviet one in particular. What may have been portrayed as a specialized living room in design blueprints became a place of sleep or homework in the k = n − 1 Soviet reality and only periodically a space of leisure and socialization within the home.

Perhaps the most famous domestic cultural practice that came to an end with the collapse of the Soviet Union was the political aspect of the “kitchen culture”: informal kitchen gatherings that first became widespread among the Soviet intelligentsia in the 1960s and continued until the end of the USSR. The kitchen in this case performed as a salon24—“a place for social interaction outside the private sphere.”25 Some of the topics discussed in these kitchen gatherings were too sensitive to discuss in a public space in the context of Soviet censorship. Soviet people talked politics in the kitchen, as in a quote provided by Melissa Caldwell: “We are used to swallowing politics with our meals.”26

The end of Soviet censorship and the end of kitchen culture went hand in hand, except that kitchen culture did not disappear without a trace. The end of censorship meant that anything could now be discussed anywhere, and the introduction of new establishments outside the home offered different interest groups an alternative space for gathering. Yet, although the political component of the kitchen culture was gone, socialization in the kitchen persisted: twenty four years after the collapse of the Soviet Union, a domestic design portal, Houzz, held a poll that asked: “How is the kitchen space being used?” Sixty-three percent of the portal’s audience responded that besides cooking (90 percent) and eating (84 percent), it was used for in-home socialization.27 Instead of dying out, the habit of socializing in the kitchen transformed its meaning from an intellectual, artistic, and political exchange in the 1960s to a normative domesticity and breadth of the soul, like in the post-Soviet television show Poka vse doma (While everybody is home).28

While kitchen culture is among the most celebrated, unique forms of Soviet socialization in the home, the kitchen was not the only space where socialization happened. Despite each room hosting someone’s sleep at night (see chapter 2), a space had to be found to host social functions, such as friend gatherings and celebrations with extended family. Chapter 3 described the character of Soviet domestic celebrations: the mandatory white cloth and the table “groaning under the weight of food” (stol lomitsia ot iavstsv, a Russian saying). As shown in the previous chapters, this first part of the celebration could not be performed in the small kitchen and instead had to take place in a room that at night hosted sleep.

From a contemporary perspective, the merging of some cultural practices, like socializing and eating, seems appropriate and even welcome: having a dinner together with friends in the dining room is a stereotype of domestic socialization in many western countries. Other functional overlaps, such as hygiene and socialization or sleep and socialization, at first glance appear problematic, if not bizarre. However, plenty of historical and contemporary examples of such overlaps and merges were not only acceptable but even desirable among urbanites.

For instance, a prominent example of an overlap between socializing and hygiene in the Soviet context can be found in the public bathhouses (bania). In the frequent absence of adequate hygiene facilities in apartment homes, particularly prior to the housing construction boom in the second half of the twentieth century, bathhouses fulfilled the needs of urbanites for spaces of hygiene. But besides hygiene, they also provided a space for socialization outside the home. Bania was of special importance to the construction of Soviet post–World War II masculinity29 and was also a magical and ritualistic place far beyond its formal understanding as a modern hygienic machine.30

Of course, bania, where rituals and gender comradery met modernity, was a more exotic example. Socializing in late-Soviet apartments was less exotic: either there was no designated living room at all and every room could take its function or there was a designated living room that had to host someone’s sleep at night. This sort of difference depended on the number of people in the household and, most importantly, on the layout of the apartment.

In 1970 Boris Merzhanov, described a living room as follows: “A living room [obshchaia komnata] is usually the biggest room in the apartment that serves for the rest of the entire family, reception of guests, studies, and homework. That is why a living room in a contemporary apartment combines functions of a dining room, parlor, and study. Often in an apartment there is not a possibility to have them as separate spaces. Besides, efficient use of domestic space corresponds with the contemporary lifestyles.”31

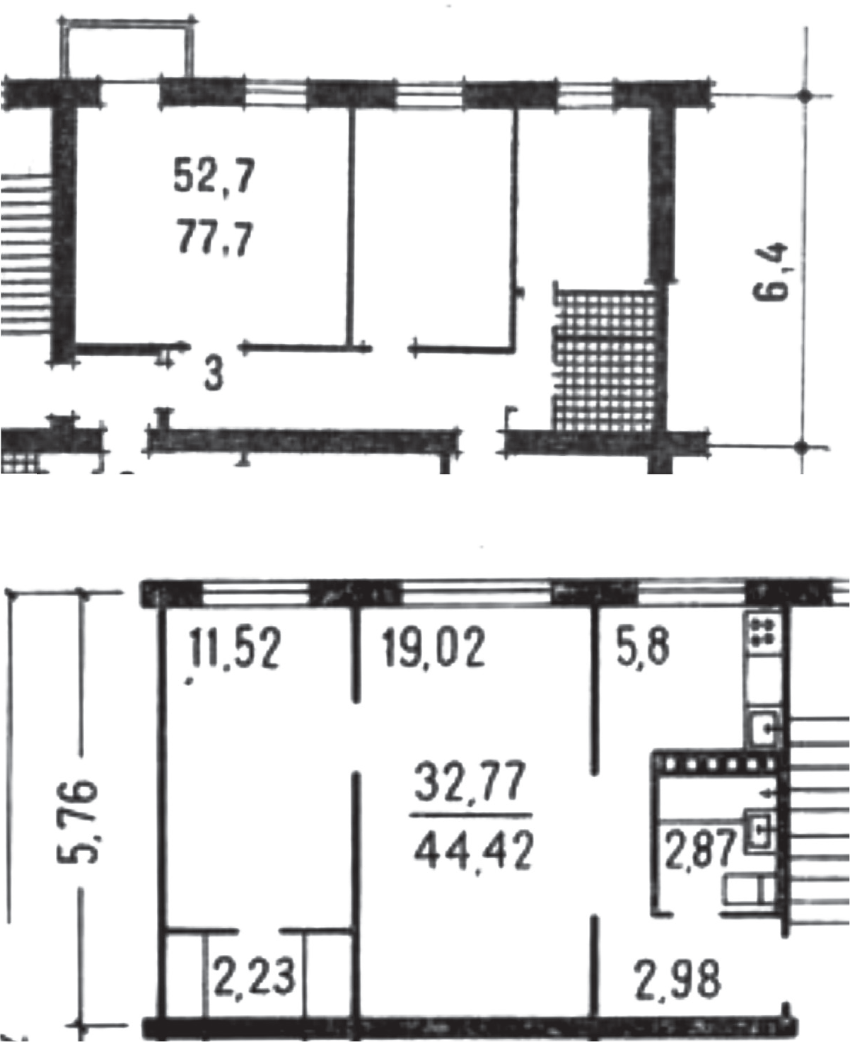
Intentionally or unintentionally, Merzhanov withheld information: the size of a room was not necessarily a definitive factor in designating space in certain apartment types because it mattered more how a room was connected to the rest of the apartment. What mattered was whether an apartment had a walk-through room. In an apartment without a walk-through room, rooms would have been connected with a hallway (figure 5.1). In apartments with a walk-through room, this room became the connective tissue and a circulation space and automatically lost its sleep-related quality—privacy and sound isolation. This meant that most social functions, such as family gatherings next to a television and celebratory dining with guests, became allocated to this room, the least fitting for the privacy of a bedroom.

In an apartment with a hallway (figure 5.1, right), where all the rooms were isolated from each other, the role of a living room could be assigned to any of the rooms. Furthermore, living room functions could have transitioned from room to room rather frequently, depending on the type of socialization happening at the apartment.32 While small gatherings were held in the kitchen, large gatherings were allocated to the room of the family member(s) that initiated the gathering or based on whether substantial dining and unfolding a gateleg table was involved.

At the same time, there was no major bias against letting guests enter a space that at night served as someone’s bedroom. A convertible couch bed would have been put into a couch position. A single bed would have been modified into a couch form with the help of pillows. From this perspective, the lived rooms of a Soviet apartment were flexible containers where almost any function could be performed on necessity.

Khrushchevka apartment with a walk-through room and a stalinka apartment with a hallway.

FIGURE 5.1. : Apartment with a walk-through room from I-464 series; Top: Stalinka standardized apartment from II-4 series with a corridor that connects rooms. (Drawings modified by the author.)

Besides celebrations and major gatherings, family time spent at home was increasingly important throughout late-Soviet history. The improvement in housing conditions provided by the mass housing campaign, as well the overall shift from anti-family bias common to the early Soviet history, led to the reintroduction of the home as a cozy place to be.33 The two spaces that were used most frequently were the kitchen and the room with a television, whether or not it was also someone’s sleeping space. Kitchens were important for the near-religious consumption of tea; while the designated living room was a place to watch television (there was rarely a television set in the kitchen; see chapter 3). Television was broadly introduced to the Soviet home as a new form of entertainment in the 1960s.34 By the 1970s, half of all families had a television set at home, including in rural areas where television ownership was less ubiquitous.35 Unlike a gateleg table that was unfolded for celebrations, a television and its seating setup was required to be permanently positioned in some part of the apartment for daily use. Therefore, the rise of television stimulated the establishment of a permanent family gathering space, the closest apartment residents would come to having a designated living room in the late-Soviet years.

Socializing in Semiprivate Spaces

A tremendous change also took place in the semipublic spaces contiguous to apartment homes: apartment building hallways, stairwells, and courtyards. Throughout Soviet history, these spaces were extensively used by children, youth, and the elderly. As Alexey Golubev points out, these spaces have been actively used by those marginalized—mostly the working class—whose practices have often been disregarded in the Soviet and post-Soviet intellectual traditions, just as they are invisible in the language of Soviet construction codes and regulations.36

Children played in the courtyards,37 and although the radioactive threat of Chernobyl may have negatively affected the perception of the outdoors for several years,38 the presence of children outside continued regardless. Unaccompanied outdoor play was a rule throughout building types, independent of the character of the courtyards. In the inner cities with historic, Stalin-era, or new urban infill apartment homes, children played in courtyards even in the absence of modern children’s infrastructure.39 In new neighborhoods built according to the modernist principles of extensive outdoor territories with planned playgrounds, children used courtyards as well. Unaccompanied children’s socialization in all kinds of courtyards did not change overnight after the collapse of the USSR.40 On the contrary, it persisted for several years until the metropolitan inner-city courtyards became a highly desirable parking asset with the extreme increase in car ownership in large cities in the late 1990s.41 Although the mikroraion—modernist neighborhood—courtyards experienced an overflow of cars as well, the prescribed infrastructure has somewhat slowed down the car takeover. To this day, many prefabricated building courtyards preserve elements of Soviet infrastructure, including some spaces meant for and occupied by children (now accompanied by adults), but problems with parking are nevertheless a pressing issue. Finally, the growing absence of children in courtyards can also be explained with the change of popular attitude toward childrens’ safety in large cities. Children no longer spend as much time outdoors, and this tendency is found in many big Western cities as well.42

For the elderly, the situation was somewhat different. Elderly people more than children required an infrastructure to socialize in courtyards, such as benches and other forms of seating.43 The absolute majority of prefabricated panel buildings had benches by hallway entrances and throughout the adjacent territory. Inner-city courtyards often had seating in front gardens adjacent to pre-1917, Stalin-era, and infill modernist buildings. During the 1990s, some of this infrastructure disappeared to make way for cars; however, when it was preserved, elderly socialization in the courtyards continued.

Youth is another group that has been affected by the new times. Spaces of youth socialization in the territories adjacent to apartment homes were not limited to just courtyards but also included hallways and staircases of apartment buildings. There is a curious disparity in literature between the amount of research produced on courtyards in Soviet and post-Soviet settings and the nearly completely missing mentions of staircases (pod”ezd), basements, and even attics and rooftops. The courtyard has been romanticized by Soviet authors, such as Bulat Okudzhava, and international academics, such as Stephen Bittner in his The Many Lives of Khrushchev’s Thaw.44 A stairwell, on the contrary, remained barely visible to creative and scholarly literature alike, despite its clear practical importance for youth and working-class social practices. According to Alexey Golubev, the social importance of staircases and hallways is disregarded because their users often did not possess a cultural voice, such as the familiar voice of the Soviet intellectual elites.45 In addition, they are ignored because despite being utilitarian in design, they show an “incapacity … to act in a strictly functional manner, to provide the unobstructed passage for bodies.”46 For different generations of the Soviet working class, the in-between spaces of stairwells, basements, and attics provided an escape from parental or marital control,47 particularly in the absence of private rooms as described earlier in this book.

Finally, Golubev mentions one more reason for stairwells to be populated with all sorts of activities not planned by the designers: the climate.48 Most of the former Soviet Union existed in climatic zones with harsh winter conditions. While gatherings in the courtyards, plazas, parks, or natural areas were rather easy in the summer, they became increasingly problematic in winter. At the same time, stairwells were heated, while basements often hosted the heating and water infrastructure of the entire building.

Perhaps, this imbalance could also be attributed to the semiprivate or private perception of an apartment building stairwell. As if there is a fine line between the semi-public space of the courtyards and the semiprivate of the stairwells, the former are willingly romanticized, while the latter are denied their cultural value. Recognized as significant or not, the practice of gathering in hallways existed during the late-Soviet times and persisted into the 1990s.49 Furthermore, in the 1990s, stairwells and basements frequently became places for homeless people to hide from the elements in the cold weather.50 Homelessness was a crime in the Soviet Union, but it was no longer a crime after 1991.51 Because of the economic, social, and political turmoil of the 1990s and this partial decriminalization of their presence, homeless people became increasingly visible in public spaces in Moscow, as described by Stephenson,52 and other post-Soviet cities. In the absence of social services, they had to find warm places to stay. Inevitably, the presence of homeless individuals in semiprivate spaces of apartment buildings caused conflict with the residents of the apartments.

Just like children’s play spaces, courtyard youth gatherings were affected by parking takeover.53 But a transformation unique to youth spaces of socialization also happened: the introduction of code or intercom doors to hallways and stairwells, typically initiated by the residents of the apartments. Although these doors were not always effective at keeping outsiders away, they clearly established hallways as spaces communally belonging to the apartment residents, instead of the Soviet model where apartment dwellers saw hallways as a territory of state and city responsibility.54 The youth practice of gathering in apartment building hallways, therefore, gained even more traits of trespassing.

Earlier in this chapter I argued that the bulletproof doors of the post-Soviet apartments were not as simple as a desire to fortify a private space against the spirit of communal living in an apartment building block (figure 5.2). In many buildings, the barrier function of the apartment door was quickly followed and doubled by the almost equally fortified entry doors to the communal stairwell. Rather than a means of claiming one’s private property, these stairwell entry doors provided another barrier between the community of the apartment building residents and the rest of the world. This world outside was seen as increasingly intruding into the semiprivate spaces, as their security was no longer insured by the large-scale state infrastructure. In other words, bulletproof apartment doors were not so much a barricade of an individual apartment privacy, but a reaction to the loss of communal control over shared spaces in the entire apartment building.

FIGURE 5.2. A bulletproof metal door and a faux leather-sheathed metal door in a post-Soviet apartment building stairwell. (Photograph by the author.)

Post-Soviet Social Space in the Home

Hanna F., an interviewee for this study, describes a re-planning undertaken by her sister in 1998 and 1999 to modify a two-room apartment for two adults and one child as follows: “They took down the partition wall between the room and the kitchen, the one [room] on the left, that before used to be kind of a bedroom. It was [also] a living room and had a balcony. They enclosed the balcony, and the living room became a leisure zone, parent zone, kind of more private” (figure 3.6).55

Hanna continues: “They removed a partition between this, like, bedroom and the kitchen. And they ended up with an open plan, somewhat L-shaped room. The former entrance to this room, on the contrary, got blocked. So, the entrance to this kitchen-dining room turned out to be from the side of the bedroom and the entryway …” Furniture relocated too: “At this entrance they put a couch. Closer to the kitchen was the dining zone. Where there used to be an isolated kitchen, they placed kitchen cabinets. And into a niche that used to be the entrance, they put a big fridge. A dining table got placed where the partition used to be.”56

The former isolated bedroom/living room became a “family and leisure zone,” as well as Hanna’s nephew’s bedroom. “He did not have a bed; he slept on a convertible couch. Later they switched things around [because he got older], and the kid’s bedroom and workspace moved to the isolated room. So, when he needed it, he got his own room.”

Hanna’s definitions speak for themselves: prior to the remodeling, both rooms in her narrative were equally undetermined. After the removal of the partition, one of the rooms permanently became a bedroom, while the other one got assigned living room, kitchen, dining room, and some bedroom functions.

There is a certain irony in the post-Soviet emergence of the designated living room area: while Khrushchev-era apartments, like Hanna’s sister’s, were built in the best spirit of modernist functionalism, it took residents’ initiative to, paraphrasing Judy Attfield’s book title, bring the mid-century version of “modernity” home by opening the plans of these apartments.57 The Soviet modern mass housing project became modern once again, now on post-Soviet terms.

The desire of post-Soviet apartment dwellers to establish functional zoning and provide everyone with a room of their own, outside the shared living room area, had its own side effects. In particular, one interviewee for this study mentioned that when she and her family lived in a small space with no separate rooms for every child, she used to see her children more often and knew what each of the family members was doing. After they moved to a larger apartment with a separate, monofunctional living room and a separate bedroom for each family member, she felt partially alienated from her children inside the home.58

Social Findings in Physical Space

Lindsay Asquith lists several common approaches to studying housing: sociological, anthropological, behavioral, and only lastly architectural.59 In the spirit of vernacular architecture—“an object without a field”—she defines these four components as essential to the integrated study of architecture and architectural history.60 Although not technically vernacular, mass housing apartments experience the same lack of integrated scholarly attention that Asquith critiqued in the case of a common house. Through what Asquith called an integrated approach, but with a special emphasis on the architectural approach—“the physical spaces themselves”61—this project has established that the post-Soviet home improvement boom was not an overnight surprise after the collapse of state socialism. Rather it was a time bomb set in the late-Soviet and perestroika context, ready to explode as soon as the necessary conditions of private labor and access to commodities were met.

What do these shifts in the spatial senses of publicness and privacy, domestic consumption, and the freedom to modify one’s dwelling add up to in relation to the post-Soviet society? These shifts in domestic practices and interiors are an inseparable part of assuming a post-Soviet identity. As shown in chapter 2, the late-Soviet trend for home improvement was rooted in decades of Soviet housing policies and practices, became fashionable due to the political and economic shifts of perestroika, and reached its heyday in the first decades after the collapse of the USSR. The resulting domestic architecture became a hybrid between the Soviet and the new—an adaptation to the new reality establishing the post-Soviet “belonging” of interiors and their residents.62 The hybrid of the Soviet mass housing infrastructure and the individually modified interiors of apartments determined the post-Soviet experience and way of life. In many cities, this hybrid became a structure so stable that it can hardly be addressed as a transitional mode of existence but rather as a way of urban living that is here to stay. Zavisca writes: “Transplanting American housing institutions [mortgage and housing market under neoliberal reforms] to Russia failed, because the resulting housing order did not provide young families with a clear fair path to attain a ‘separate apartment.’ ”63 Indeed, a separate, owned apartment may not have become an omnipresent reality of every post-Soviet nuclear family; what happened instead was apartment remodeling and associated spatial changes—the actual physical transformation of everyday life that took place along with the collapse of the USSR.

Not unlike how nuclear-family homeownership became a definitive trait of the American middle class in the late 1940s, the desire for remodeling and the spatial transformations that followed became the necessary traits of acclimatized post-Soviet urbanites in the 1990s.64 If, as Zavisca claims, “desiring a separate apartment for the nuclear family is neither natural nor inevitable,”65 then it is remodeling and the resulting spatial change within existing homes that should be considered a definition of the post-Soviet condition in the fundamental human category of dwelling.

Annotate

Next Chapter
Conclusion
PreviousNext
All rights reserved
Powered by Manifold Scholarship. Learn more at
Opens in new tab or windowmanifoldapp.org