Skip to main content

Taking the Soviet Union Apart Room by Room: 3. Eating

Taking the Soviet Union Apart Room by Room
3. Eating
  • Show the following:

    Annotations
    Resources
  • Adjust appearance:

    Font
    Font style
    Color Scheme
    Light
    Dark
    Annotation contrast
    Low
    High
    Margins
  • Search within:
    • Notifications
    • Privacy
  • Project HomeTaking the Soviet Union Apart Room by Room
  • Projects
  • Learn more about Manifold

Notes

table of contents
  1. List of Figures
  2. Acknowledgments
  3. Romanization
  4. Glossary
  5. Introduction
  6. 1. Remodeling
  7. 2. Sleeping
  8. 3. Eating
  9. 4. Cleaning
  10. 5. Socializing
  11. Conclusion
  12. Notes
  13. Bibliography
  14. Index

3 EATING

Crowded, but not aggrieved [V tesnote, da ne v obide].

—Russian saying

“The kitchen was 8 [square] meters. When we brought in the furniture, I had a choice: either to have a fridge or a table. After the stove and the sink were put in place, both a fridge and a table would not have fit simultaneously,” recalled Oksana H. while showing me the original layout of her Soviet-planned apartment before she remodeled it in 2001.1 We were seated at the dining table in her living room, looking into her kitchen through a portal in the wall. The dining area is a continuation of the kitchen area. The rest of the living room is taken up by a separate den, as it is often called in American homes—couches, armchairs, and a coffee table. Although Oksana’s original kitchen layout was already three square meters (thirty-two square feet) bigger than the smallest Soviet-built apartment kitchens, her concern was that it would be impossible for her family of four to comfortably cook, store food, eat, and spend time together confined to those eight square meters (eighty-six square feet).

In 2001, Oksana wanted everything having to do with food—cooking, storage, dining, and socializing over a meal or tea—to fit into the kitchen. She was willing to move the kitchen walls rather than change her expectations for the space. That is why as soon as her family was able to move into their new apartment, they started replanning the layout of their new home. They adjusted their food spaces to their vision, even though they did not have enough resources to do it all at once and had to take months to accomplish the entire project. As Elizabeth Cromley, expert in quotidian spaces, puts it, the “food axis” of a home—spaces related to cooking, food storage, and eating—“change with time, region and climate, ethnicity, gender, class, and household economics.”2 Inspired by the many post-Soviet urbanites who sacrificed their orderly lives for months and sometimes even years of remodeling, chapter 4 tracks how these apartment dwellers formed their understanding of food spaces within late-Soviet homes and how this sense changed on the eve of and after that historic rupture—the collapse of the USSR in 1991.

To speak about the gradual changes in food spaces effectively, this chapter is structured under three themes: the late-Soviet domestic food spaces and practices, the late Soviet and post-Soviet remodeling boom, and the transformation of domestic food-related architecture along the collapse of the USSR in 1991. Kitchens, especially the small Stalin and Khrushchev-era kitchens largely disregarded in the world of the official Soviet homemaking, were the first in line to be remodeled by eager urbanites. First, this chapter explains the peculiarity of late-Soviet eating spaces, determined on the one hand by the institutional construction of a proper Soviet home and on the other by the grassroots, everyday practices occurring tangentially to, or even against, the effort of the state.3 Second, this chapter speaks of the increasing interest in domestic remodeling in the late 1980s and the full-blown remodeling boom in the 1990s to provide context for the physical transformations that took place in these food-related spaces. Finally, this study addresses the transformations themselves: both the physical and ephemeral changes that took place in apartment homes, influencing everyday life for post-Soviet urbanites.

From Solid to Collapsible Tables

The majority of Soviet and post-Soviet urbanites had access to a kitchen in their dwelling. Throughout Soviet history, a few types of urban housing had no kitchen access, such as barracks (baraki, a type of communal housing not necessarily equipped with kitchen or hygienic facilities) and communal apartments that were established in previously nonresidential buildings. But most communal and individual dwellings had a kitchen available. At the same time, the majority of Soviet homes had no dining room.4 With a small number of exceptions, such as early Constructivist experimental apartment buildings, Soviet urbanites cooked their food in the kitchen.5 The question of where food was consumed requires a more complex explanation and a brief historic retrospective. To identify where late-Soviet apartment dwellers ate in the absence of a dining room, it is first necessary to differentiate between the types of late-Soviet urban housing, with communal and individual housing being the largest categories. In communal housing, cooking spaces—kitchens—were shared between multiple unrelated individuals and families. Individual apartment dwellings had their own separate kitchens. Existing dining rooms in urban homes fell victim to compaction—uplotnenie described in the previous chapter. At the same time, newly built apartments were distributed by the state following the k = n − 1 formula that required the number of residents (n) to outnumber lived rooms (k) by 1, making a separate dining room virtually impossible in any type of housing.6

A typical kitchen in a communal apartment contained several stoves, a workstation, and some storage. While a communal kitchen could have accommodated seating, food was rarely consumed in this shared space.7 Apartment dwellers perceived a kitchen as a utilitarian labor space rather than the cozy hearth of a home.8 Communal apartments were a social experiment; unrelated families and individuals from different social groups were placed in one apartment to live together. Conflicts were frequent; theft or even intentional ruining of food were not unheard of.9 Excessive use of the shared spaces was perceived as antisocial. Alcoholics drinking in the communal kitchen or sleeping in the communal corridor or neighbors taking over the bathroom for too long were typical examples of antisocial behavior.10

A communal kitchen could become almost anything but rarely a place for eating. Rather than being eaten in situ, the prepared food would be taken and spread into rooms.11 The food was then consumed at a large, almost corpulent table, particularly iconic for the communal Stalin-era (1922–1952) apartments.12 A family room in a communal apartment, or in an individual apartment built prior to the late 1950s, was typically big enough to fit a large table. All kinds of domestic practices took place at those large round or rectangular tables, such as meals, homework, and ironing. In the staged journalistic photographs of the mid-century USSR, workers were often portrayed at home with their families, celebrating, enjoying tea, reading the newspaper, or doing some sort of work at such tables; these tables came to symbolize domestic comfort and well-deserved rest (figure 3.1).

No less important than everyday practices shown in the Soviet mid-century images are the practices and spaces not shown: utilitarian spaces, kitchen included, remained invisible to the photo and film camera. This circumstance was not due to the specific communal kitchen inconveniences, but rather due to the general understanding of a kitchen as a utilitarian workspace, in all types of apartment housing. Food practices of a mid-century Soviet urban apartment, therefore, existed somewhere in between what Sarah Bonnemaison defines as the “traditional patterns of cooking, eating and living in a single room”13 and a former bourgeois apartment kitchen, which used to be a space of servant labor and living and became the space of housewife’s labor after the 1917 Bolshevik Revolution.14

It is only with the arrival of the prefabricated mass housing and the accompanying furniture production that kitchens surmounted their utilitarian past and became used not only for cooking but also for consuming food. Khrushchev’s course toward an individual apartment for every family implied a separate set of auxiliary spaces—such as kitchens, bathrooms, and storage—for every apartment. However, instead of simply transferring the old practices of cooking and eating into their new apartments, the Soviet urbanites had to largely adjust to their new spatial organization.15 The theoretical model of a home chosen by the Soviet architects, engineers, and politicians was not unlike its Russian Constructivist and Western, specifically German, functionalist counterparts. A model Khrushchev-era (1953–1964) kitchen in many ways resembled the Frankfurt kitchen:16 its organization was supposed to be as efficient as possible to alleviate the burden of everyday domestic labor. The modernist qualities of the new Soviet residential design “included the use of reinforced concrete; the harmonization of internal spaces, as well as of interiors with natural landscape; a striving for a sense of openness; and the conformity of form to function in terms of structure, furnishing, and décor.”17

Archival photographs of domestic space and furniture use in the 1940s and 1950s.

FIGURE 3.1. Left: A cooperative worker unable to stay away from home for long doing her work at her home table. Soviet Information Bureau Photograph Collection, photographed between 1945 and 1949. “Soviet producers’ cooperatives” folder. Davis Center for Russian and Eurasian Studies Collection, H.C. Fung Library, Harvard University. Right: Preparation for the Victory Day celebration, photographed between 1945 and 1954. Soviet Information Bureau Photograph Collection. “Soviet family on VG-Day.” folder. Davis Center for Russian and Eurasian Studies Collection, H.C. Fung Library, Harvard University.

At the same time, a major difference existed between the Soviet prefabricated housing and examples in other countries, starting in 1958 and practically starting with the second generation of prefabricated housing (1963–1971):18 Sanitary Norms and Regulations strictly prohibited open kitchen design due to the safety restrictions for gas stoves.19 Therefore, the modernist striving for openness may have persisted in concept but only made it into a few examples of first-generation prefabricated housing on the ground. Khrushchev’s housing campaign strove to be, among other things, economical.20 Together with the continuing norm of housing area per person (nine square meters or ninety-seven square feet from 1918 to 1983 and twelve square meters or 129 square feet from 1983 to 1991 in the Russian Soviet Federative Socialist Republic)21 and the spacing between the concrete slabs at 3.2 meters (10.5 feet), these apartments were quite small. This meant that a Stalin-era all-purpose large table would no longer fit comfortably in the new small rooms. Besides, these small rooms already hosted a number of functions (such as sleeping, homework, and watching television) for a number of residents that mandatorily outnumbered the number of rooms. Space for family meals was no longer to be found in the lived rooms and had to relocate somewhere else.

The spatial layout and performance of a kitchen changed dramatically in the late 1950s: individual kitchens with a dining table and chairs, used for preparation as well as food consumption, replaced the earlier utilitarian workstations of communal kitchens. Daily meals relocated to the kitchen despite the tightness of these newly reimagined spaces. Under the 1958 change in the Soviet building codes, the lowest overall permissible area of an apartment dropped down to sixteen square meters (172 square feet) of residential area,22 and kitchens went from a minimum of seven square meters (seventy-five square feet) down to 4.5 square meters (forty-eight square feet).23 Due to this same tightness, the large table was entirely left behind and replaced with a small table instead. Oftentimes these new kitchen tables were collapsible to fit the new, limited space.24

The Soviet furniture industry, sluggish like the rest of the Soviet consumer goods sector, switched its design standards and sped up furniture production with the introduction of prefabricated apartment homes. Since the new apartments were small, they were very furniture-conscious: a 1956 architectural contest specified that furniture and fixtures for the standard apartments in the new three-, four-, or five-story apartment buildings must include a 90-by-90 cm (35.4-by-35.4 in) kitchen table, a sink built into a small cabinet, a stove, a mounted cabinet above the table, and some shelves or a cabinet above the sink.25

The famous 1959 Kitchen Debate between Khrushchev and President Richard Nixon fueled publication of many domestic manuals and technology instructions and drove even more interest in the formerly utilitarian space of the kitchen.26 Although demand for domestic technology in the USSR grew faster than the level of its production, kitchen technology, and refrigerators in particular, now became visible to the public eye.27 With the arrival of these new furniture designs and domestic technology strategically developed for the new, smaller apartments, a kitchen became systematically present in the world of Soviet images.28 For example, Bol’shaia sovetskaia entsyklopediia (Great Soviet encyclopedia) illustrates a kitchen with a photograph from a showroom with new examples of modern furniture, meant to transition the problematic communal apartment life of a Soviet person into the modern sterile and civilized interiors of the new, individual apartments.

The new apartments would also provide impetus to the never-ending project of women’s liberation from “kitchen slavery.”29 Although this image clearly indicates the functionalist aesthetic of these new kitchens, it does not do justice to real kitchen interiors of the time that were actually smaller and limited to a set of furniture and fixtures described in the competition call above: a table, a few stools, a sink, and two or three separate cabinets at most (figure 3.2).30 A full set of kitchen fixtures, furniture, and a large dining area could not have fit into the early mass-built housing kitchens, often between 4.5 and 6.8 square meters (between forty-eight and seventy-three square feet) as in the widespread K-7 apartment building series, originally built between 1958 and 1969.31

Despite the modest size of the Soviet kitchens constructed in the 1950s and 1960s, urbanites still consumed their daily meals at the kitchen table. Soviet research in the 1980s indicates the following: “During weekdays 100% of single people and couples ate in the kitchen and so did 80% of families with three-, four- and more family members. During weekends almost ¾ of the overall number of interviewed families also ate in the kitchen. Eating in the family room [obshchaia komnata] has episodical character and happens mostly during holidays and while having guests.”32

Food Spaces of the Late Soviet Home

In this way, a kitchen was no longer an auxiliary space meant only for meal preparation but was a desirable place to be. In the last three Soviet decades—the 1960s through 1980s—eating and spending time in the kitchen became the unquestionable norm. Unlike the communal apartment kitchens of the 1950s, the small kitchens of the new modernist housing were widely showcased in film. Only a decade after the virtual absence of kitchens in Lev Kulidzhanov’s film Dom v kotorom ia zhivu (The house I live in, 1957), the 1966 Marlen Khutsiev’s film Iiul’skii dozhd’ (July rain) illustrated the ongoing shift in the status of a kitchen and the transition of eating and social functions away from the room and into this formerly auxiliary kitchen space.33 Around the time the characters in July rain gather and play guitar in the kitchen, the protagonists of another widely popular movie Operatsiia Y i drugie prikliucheniia Shurika (Operation Y and Shurik’s other adventures) (1965) still dine in the room.34 Less than a decade later, the same Operation Y protagonist under the command of the same director eats in the kitchen in Ivan Vasil’evich meniaet professiiu (Ivan Vasil’evich: Back to the future) (1973).35

FIGURE 3.2. “Kitchen fixtures” illustration from Boris Merzhanov’s book Inter’er zhilisha (Moskva: Znanie, 1970).

In 1984, Rabotnitsa illustrated that a guest’s visits were taken seriously by saying that in this guest’s presence the family dined in the lived room, not in the kitchen as usual.36 Another Rabotnitsa article titled “10 metrov na 100 chelovek” (10 meters for 100 people) claimed the following: “Even if a family lives in a large apartment that has a living room, still they only gather there 3–4 times a year when they have guests.” “Having guests” in this case entailed formal celebratory occasions, such as birthdays and big holidays. Everyday space use was presented differently: “At other times we all spend our nights at the cozy kitchen where a TV never goes dark, never-ending conversations with friends are held, sometimes until morning, and dekaliters of tea are consumed … Perhaps our housing conditions—the minimal square footage—gave birth to this tradition: the hearth of the apartment is the kitchen. Here we like to write, read, draft, knit, and even do homework.37

In the last three decades of the USSR, the social functions of the kitchen became elevated to what Svetlana Boym described as “kitchen culture”: a trend that started among the Soviet intelligentsia in the 1960s to informally gather in the kitchens and “occasionally” eat.38 By the 1980s, kitchen culture took over the rest of Soviet society; Rabotnitsa puts it that a kitchen “has to combine two functions: [that] of a kitchen block and [of] a living room.”39

The move away from the utilitarian kitchen progressed further with the Brezhnev-era (1964–1982) resurrection of a belief in domestic comfort. Domestic advice manuals of this period suggested decorating kitchens with sentimental memorabilia rather than just functional objects like in the minimalist Khrushchev-era interiors.40 Kitchens were now called to become “aesthetically expressive and distinctive,”41 a vision that bloomed with the great variety and abundance of kitchen modifications in the 1990s.

Inside the home, the everyday and occasional foods were separated not only in their symbolic meaning but also in terms of the place of their consumption. In late Soviet apartments, casual, everyday eating took place in the kitchen. Formal dining with extended family or an extended group of friends on a special occasion always took place in one of the lived rooms. Formal dining with an extended circle required a large table; no regular Soviet family could afford to keep a large table like that in one of their lived rooms or the kitchen at all times since it would have consumed all the available space. Instead, urbanites would have a collapsible table in one of the rooms that would only be fully unfolded on a couple of important occasions a year and whenever domestic work, like sewing, required a large work surface. The gateleg tables that came to replace the round tables of the communal apartments were nicknamed “table-books” for their ability to unfold and were a highly desirable piece of domestic furniture.42

Moreover, many Soviet celebrations were tied to television, such as the traditional annual watching of a Soviet New Year’s Eve show Goluboi ogonek (Blue light). Since a typical late-Soviet family only had one television set (and a dream to someday have another in the kitchen), the room where formal eating took place would also be the room with the television.43 This way it was possible to watch holiday shows without leaving the dining table.

In the absence of affordable restaurants or quality casual dining places, celebrations were held at home. During those gatherings, special foods were consumed that were prepared in the kitchen but bore too much meaning to be consumed in an everyday setting.44 By late perestroika (i.e., late 1980s), many foods were difficult or impossible to buy. These foods were nicknamed deficit. Deficit, as a noun, referred to goods that were no longer easily available in stores on an everyday basis due to production and distribution problems with the planned economy. To hunt down a deficit, one had to either stand in long lines to get it on some rare occasion when it randomly appeared in stores or buy it overpriced through carefully cultivated personal connections with store employees. Depending on the region, different foods could be deficit, but typically deficit meant quality meats and meat products.45 And, of course, families had complex or expensive recipes that were only used for special celebrations. During different time periods and for different social strata, these recipes ranged from luxuries or ethnic and regional foods, such as red or black caviar, gefilte fish, and haroseth,46 to the affordable Soviet celebratory classics, such as Olivier salad.47 The deficit foods, luxury foods, or imported versions of familiar foods (such as Pepsi Cola instead of regular Soviet soda water with syrup) would only be consumed with guests at the unfolded large table typically in the biggest room of an apartment (figure 3.3).

Sometimes extra chairs or extra stools were borrowed from neighbors to accommodate large parties. At other times, apartment dwellers with extended families or large friend groups used two- to three-meter-long wooden planks to make benches out of stools for celebratory occasions.48 Although celebratory eating happened in the living room, the social gathering may have later relocated to the kitchen if there were smokers in the group. Post-meal socialization was more comfortable in the kitchen, with its resourceful use of space, as opposed to the large, overly formal white-clothed table in one of the lived rooms.49

The tradition of the celebratory feasts in apartment homes, particularly those held for the favorite Soviet holiday—New Year’s Eve—outlived the Soviet Union itself. Jennifer Jordan states: “food becomes incorporated into our personal memories, identities, and daily practices and also into the collective identities of communities, diasporas, and nations.”50 Despite the emergence of many public places that offered New Year’s Eve parties, post-Soviet urbanites continued gathering at home, and spending hours eating food, drinking, and talking by the “holiday table.”51

In the first half of the twentieth century, food may have been prepared in the kitchen, but eating permeated and penetrated all the rooms of the Soviet apartments on an everyday basis. In the second half of the twentieth century, though, the situation turned the other way around; social functions took over the originally food-centered space to a degree that eating and food preparation became nearly supplementary in the social space of a kitchen. At the same time, it is crucial to remember that many of these kitchens were rather small, if not tiny, with a typical Khrushchev-era apartment kitchen not exceeding seven square meters (seventy-five square feet), and the so-called improved plan apartment’s52 kitchen starting at eight square meters (eighty-six square feet).53 “Improved plan apartments” is an umbrella term used to define apartment series buildings where apartments had bigger floor areas, separate kitchens, and more storage space than the early prefabricated series. In terms of architectural series, improved plan apartments typically refer to the second generation of prefabricated apartment building construction starting in 1963.

A New Year’s celebration at home, late 1990s.

FIGURE 3.3. A New Year’s celebration at a table unfolded in the biggest room of an apartment, late 1990s. (Copyright of the author.)

How did the small dimensions of Soviet kitchens affect the cooking and eating practices of the post-Soviet urbanites, after the prescribed upper limit for the kitchen area was no longer effective? How did the Soviet spatial practices transform after the state that facilitated their creation ceased to exist? To answer these questions, it is necessary to look at the late- and post-Soviet practices of kitchen remodeling.

Post-Soviet Kitchen

The late-perestroika and early post-Soviet eating spaces exemplified a paradox. Chapter 1 “Remodeling” demonstrated that despite the shortage economy and the decline in overall social prosperity, perestroika and post-Soviet reforms enabled access to private labor, private production, and imported goods. Despite the fascination with the West and everything Western, Soviet urbanites did not produce food spaces that closely resembled their Western counterparts but rather created their own spatial model of eating, cooking, and storage. Inside an urban home, this predicated the period’s leitmotif: remodeling and apartment replanning, with kitchens being first in line to change.

Kitchens, perhaps more than any other part of the Soviet mass-constructed prefabricated apartments, are cited to be small and inconvenient.54 Rabotnitsa magazine was among the earliest Soviet sources to suggest a radical revision of a kitchen. The article “10 metrov na 100 chelovek” (10 meters for 100 people) offered the following solution: “in coordination with an architect you can move walls, expanding the kitchen and reducing the size of a room. Third option: the wall does not move, but niches are made in it for the shelves, drawers and the fridge and all this furniture is placed flush with the wall.”55

The issues with kitchens were not a secret to those responsible for the design of the Soviet apartment homes—Soviet architects, planners, and engineers. And yet, the changes clearly anticipated by the public and the architects were impossible to implement within the context of a centralized Soviet economy. For instance, until the last days of the Soviet Union, prefabricated panels remained a basic unit for residential construction; monolith concrete construction remained rare and had to be approved by the highest authorities on a case-by-case basis.56 In the standardized prefabricated panel apartment buildings, the technology and the law did not allow for much variation.57 All rooms and spaces were typically constructed as rectangular boxes and bearing in mind the constraints of the spans and the spacing of the load-bearing panels. Innovation came in the form of a new apartment series with bigger or differently organized prefabricated panels. Between the beginning of mass prefabricated housing construction in the 1950s and its end after 1991, the dimensions of the prefabricated panels grew, and so did the floor area of apartment kitchens.58 The 1970s and 1980s had seen the rise of the so-called improved plan apartments, when the span between the load-bearing panels went from around 2.6 meters in the late 1950s to 3.6 meters in the late 1980s.59 The building code minimum requirements for the kitchen areas went up accordingly from 4.5 square meters in 1958 to eight square meters in 1989.

With mass prefabricated housing construction, the architectural profession separated into two distinct branches. On the one hand were architects and engineers who developed the prefabricated apartment buildings meant for mass construction, and on the other were those who worked on individual projects, including individually designed apartment buildings. Architects who worked in individual construction faced the same problems with small dimensions predicated by the building code, but they approached them differently. As one of the respondents for this research put it, he “only ever looked at the building codes (Sanitarnye normy i pravila) to find a way around their limitations.”60 Because of the building code minimums, architects only had a chance to design the composition and form of apartment layouts, not their dimensions. However, by the late-Soviet period, architects commonly believed that formal dimensional requirements were problematic and could barely host all the functions that had to be located in a kitchen. Therefore, architects would invent tricks to enlarge these small spaces. For instance, a respondent for this study explained that he used to attach storage areas directly to kitchens during the planning stage and would never actually construct those storage areas after the plans were approved by the State Committee of Construction.61 As a result, an additional ten to fifteen square feet would be added to the kitchen area, and that could be enough space to comfortably fit a refrigerator so that the residents of the apartment would not need to stand up and move their stools out of the way every time they needed to get something from the fridge.

By the 1980s, the last decade of Soviet rule, kitchens frequently were not only small but also desperately outdated, still resembling their utilitarian predecessors from the early 1950s. Despite the Soviet 1950s–1960s campaign for new kitchen cabinet sets for small prefabricated apartment buildings, not everyone was able to find or afford them. Well-made, diverse furniture was among the major Soviet shortages, and even those who were able to buy kitchen cabinets during the peak of their production in the 1960s witnessed those cabinets gradually lose their glamour during the subsequent two decades of daily use.

Under Gorbachev’s reforms (1988–1991) that liberalized the labor code and paved the way for individual production of goods, cooperatives changed the rules of the furniture world by creating custom kitchen cabinets from available materials. Then, in the early 1990s, locally produced materials were replaced with custom-ordered imported elements assembled by local specialists.62 By the late 1990s, kitchen furniture stores were abundant in larger post-Soviet cities and frequently offered remodeling or interior design services in addition to the furniture itself.63 The Soviet kitchens that lacked individuality in the 1980s became, in the 1990s, a battlefield for individual solutions meant to impress, similar to how book and souvenir collections were used as a sign of social status during Soviet times.64 The favorite65 and the most universally used66 part of the Soviet household became filled with the senses and symbols of the new post-socialist well-being (figure 3.4).

Since the collapse of the Soviet Union, food-related spaces, and kitchens in particular, have experienced a wide range of transformations as if to spite the strict Soviet laws. While kitchens were the hearth of the Soviet urban home and a hub for counter-Soviet thinking, they were also—ironically—the most regulated part of a Soviet apartment.67 A kitchen had to have a window and a door, particularly because the majority of the Soviet apartment homes had gas stoves.68 For the same reason, between 1958 and 1971, almost no kitchen (other than rare kitchenettes with electric stoves) could be combined with any other room in the house and had to have a door rather than a portal.69 To reiterate, a kitchen was supposed to be bigger in an apartment with more rooms, quietly addressing the fact that meals were to be consumed in the kitchen, even in a large family.70 At the same time, a kitchen was not to exceed a building code’s upper limitation for state-owned and assigned (and hence, social) housing; having two kitchens in the same apartment was simply unthinkable, although many apartments were meant to be populated by multiple generations.71 However, after 1991, kitchen restrictions in the Soviet-era Sanitary Norms and Regulations no longer made sense.

FIGURE 3.4. A 1990s kitchen setup. (Copyright of the author.)

The early post-Soviet eating spaces followed two different avenues of transformation with virtually the same spatial outcome at the end. The first avenue, available to those with enough financial resources and the courage to start a massive remodeling job in their dwelling, was to remove a wall between the isolated Soviet kitchen and the adjacent room to create a version of an open plan, with the help of a dining table, other furniture, or semi-partition walls. The second option was to create additional partitions in the lived rooms. This option may not have affected the walls of the kitchens but would have dramatically shifted the spatial dynamics (figure 3.5).

Three apartments showing plan transformations from Soviet to post-Soviet period.

FIGURE 3.5. 1–447 series apartment plan transformations from Soviet (top) to post-Soviet (two on the bottom) period. In apartment 1, cooking and daily eating take place in the kitchen, while occasional eating takes place in the room that assumes most living room functions. In apartment 2, the spaces for eating and cooking merge, producing a dining zone that may be used for both daily and occasional eating. In apartment 3, the room that used to assume living room functions gains more privacy through the construction of a new wall. In this case, formal dining may relocate to the kitchen, which is adjusted to host more guests under more formal circumstances. (Drawings by the author.)

Because of the notorious tightness of Soviet kitchens, partially objective and partially constructed through the business of these spaces, kitchens received a lot of attention after the Soviet Union collapsed. The ghost of the Cold War and the Kitchen Debate—a dream of a convenient and spacious American-style kitchen—kept haunting the Soviet, post-Soviet, and post-socialist homes long after the confrontation was over and the Soviet Union itself was gone.72

Krisztina Fehérváry gives an account of the post-socialist Hungarian tendency to construct American open-plan kitchens in newly built homes and privatized apartments.73 A similar tendency toward the open plan and the language of the Westernized interiors could be found in all post-Soviet and post-Warsaw Bloc countries. Yet, Fehérváry’s article contained an important moment that should not be disregarded when talking about Americanized kitchens and their overall Westernization. She wrote that “the newly built suburban family house was fast becoming the most important indicator of middle-class status nationwide” even in cities, where central-city living had been considered prestigious for decades.74 Unlike many cities of the former Socialist Bloc, most post-Soviet megacities did not have a consistent tendency toward suburbanization and construction of new, individually designed housing from scratch.75 With the exception of Baltic urban populations76 and Moscow elites,77 post-Soviet urbanites improvised with the available housing stock instead of constructing Western kitchens from scratch with no spatial restrictions. In these circumstances, the newly constructed kitchens barely resembled their supposedly Western prototypes and did not reproduce the Western model of home dining. Similar to the rest of the post-Soviet spheres of life, rather than transitioning to the Western models, urbanites created a model of their own, the post-Soviet cooking and dining areas becoming their own space with their own set of spatial practices.

Irene Cieraad convincingly argues that in the United States an open-plan kitchen was a reaction to the enclosed Fordist efficiency kitchens and the resulting alienation of women in these spaces.78 However, in post-Soviet apartments, demolition of a wall between the kitchen and an adjacent room, hence opening the plan of the apartment, was usually not a response to the spatial retrenchment of the early mass-built apartments. Rather than being driven by the necessity to open the space of the kitchen to the rest of the house and simplify domestic logistics as in the case of the American kitchens,79 the opening of the post-Soviet kitchen was a desperate attempt by the residents to enlarge the space for cooking, food storage, and eating, sacrificing the lived space of the other rooms if necessary.

This attitude was best illustrated in the Rabotnitsa article on kitchen remodeling that suggested three ways to improve a small kitchen situation: to move utility lines to the adjacent room, enlarging the kitchen and making the room smaller; to move the wall of the kitchen further into the adjacent room; or to make niches for kitchen cabinets in the wall and then solve “the problems” in the room that may have resulted from such transformation.80 Since this article was published in 1989, it did not suggest removing a wall completely, a move rather unimaginable in the Soviet-era overpopulated apartments. However, the basic idea, to fix the problem with the kitchen at the expense of another room, was already well established.

After 1991, replanning with the goal to enlarge a kitchen was usually accomplished through a partition removal. Furthermore, it was a move toward the “modernization” of an apartment and the lifestyle of its inhabitants. The last four decades of the Soviet rule in the architectural realm can be decidedly identified as the absolute, complete rule of modernist architectural ideals: function and utility over decoration, codification of the many principles stated in the Athens Charter of 1933, as well as the formal reliance on science and industrial prefabrication as the main architectural and construction principles. Nevertheless, through the post-Soviet remodeling and rethinking apartment layouts, post-Soviet urbanites “modernized” their modernist homes. The removal of the wall between the kitchen and the living room and the creation of an open-plan living room was a central move in this modernization.

For instance, a book titled Re-planning, Remodeling and Apartment Design (2006) summarizes: “Vast majority of Russians, according to the statistics, still live in mass-built apartments. And the most mass built out the mass built are khrushchovkas [first and second-generation apartment series]: a small kitchen, closet-like rooms, low ceilings. However, professional architects and designers argue that even this, particularly re-planning and innovation-resistant housing can be perfected, made more modern and comfortable.” The book then suggests how to improve such apartments: “The most wide-spread method is to demolish several internal partitions and create one large space, meaning adjoining several (two or more) rooms into one.”81

This type of replanning is illustrated in a home of two adults and one young child described by Hanna F. Her sister’s family replanned their two-room 1960s apartment in 1998. Originally, the apartment had an entry space with doors to all available spaces: two lived rooms, a kitchen, and two doors to the bathroom and the toilet. Since the family liked to spend their time in the small kitchen space, they decided to demolish the wall between the kitchen and the next room: “We put a big fridge in the niche that used to be the kitchen entrance … dining table went around where that partition between a bedroom and the kitchen used to be, and what used to be a bedroom became … a family and entertainment zone.”82 In other words, after the renovation, the newly created large space was used as a kitchen, living room, and child’s room (figure 3.6).

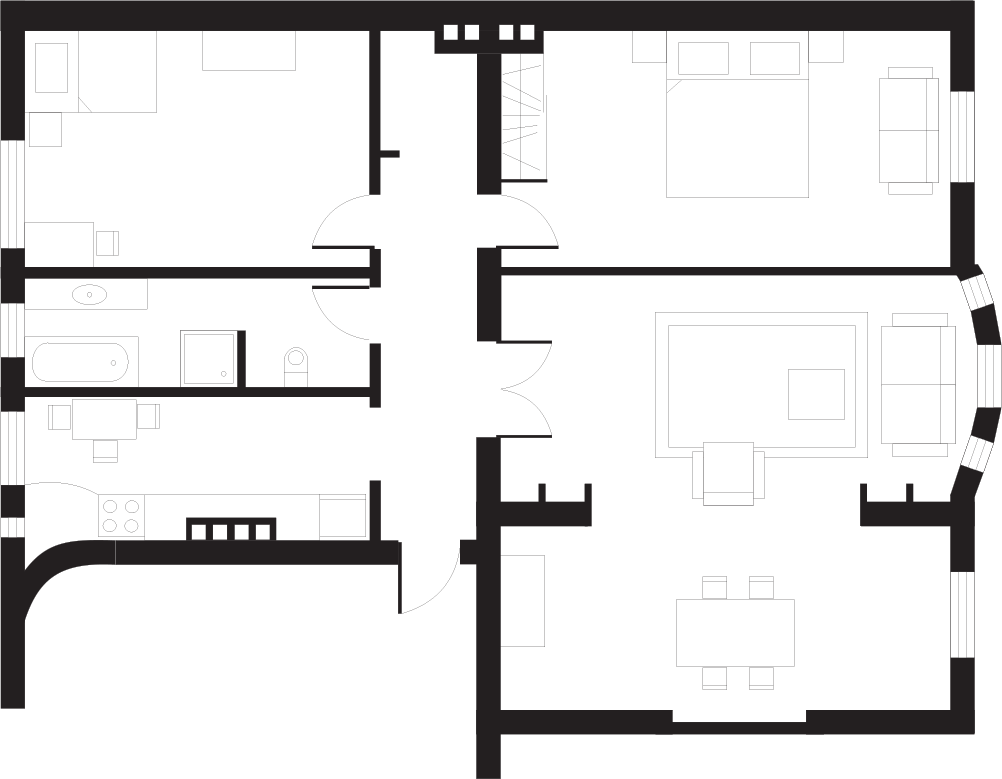
Not all apartment residents could demolish the wall between the kitchen and the adjacent room even if they wanted to, simply because the wall may have appeared to be load-bearing.83 Not all apartment residents chose to do so even if they could; yet, when the Soviet urbanites had economic resources to reconstruct their space in any way, they usually established a dining zone that created different spatial uses from those of the Soviet period. The most subtle example is found in larger apartments, where the walls of the kitchen remained intact, yet there appeared a separate living room (which would not become a sleeping space at night) with a designated dining area and a permanently placed dining table and a separate den (figure 3.7).84

A two-room apartment.

FIGURE 3.6. A two-room apartment plan drawn based on an interview with a resident’s relative, Hannah F. (Drawing by the author.)

Another scenario for keeping the kitchen walls was even more subtle, yet more transformative to the everyday practices of the apartment occupants. In those apartments where several generations of families lived together, residents could erect a new wall isolating the former walk-through room for further privacy of one of the adults or families. Typically, residents would create a hallway separating the shrunken former walk-through room and creating separate entrances to both spaces.85 Besides providing more privacy for sleep, this also meant that the social functions of the walk-through room were now relocated to the kitchen more so than ever before (figure 3.7).

This case of remodeling can be illustrated with the kitchen furniture trend, which was widespread right before and after 1991. Instead of regular movable chairs and stools, apartment residents started acquiring kitchen benches and micro-sofas to create what the post-Soviet population called a soft corner (miagkiy ugolok)—a couch-like bench in the kitchen (figure 3.8). These kitchen bench-couches were not produced by the Soviet state furniture industry. The technical standards (GOST) employed by the Soviet furniture industry did not contain any regulations or mentions of a kitchen bench, although they contained regulations for the rest of domestic furniture meant for sitting, including kitchen stools.86 The last 1967–1972 edition of the Great Soviet encyclopedia never mentions the soft corners, although it does mention a long list of close relatives: sofas, daybeds, ottomans, couches, chairs, and stools.87 Soviet designers intended the kitchen seating to happen on chairs or stools, and no elements of living room furniture were to be introduced into this space, still largely seen as utilitarian from the perspective of the state and its planning institutions. However, by the end of the 1980s, soft corners became an extremely popular trend. A 1989 Rabotnitsa article on kitchen interiors indicated that they were a contemporary “mass craze,” now produced by privately organized cooperatives and appearing for sale.88 This spatially fixed sitting area was not only to provide additional comfort for everyday eating89 but also to adjust the kitchen space to occasional formal gatherings, establishing a micro-living room inside the kitchen.90 In fact, apartment residents were frequently willing to relocate food storage and refrigerators away from the kitchen and into the hallway to free a bit of space for a soft corner in the kitchen. The trend went so far that the soft corners, similar to the living room couches, were sometimes used for sleeping at night, illustrating that post-Soviet sleep still occasionally encroached into any living room–like space in the house, even if it was the kitchen. An interviewee for this study, praising the layout and the size of the kitchen in her improved plan apartment, concluded that the kitchens were so big that some neighbors “put couches in their kitchens and … slept on them.”91

Remodeling plan of a four-room apartment.

FIGURE 3.7. Remodeling plan of a four-room apartment suggested by Idei vashego doma introducing a dining space separate from the kitchen. (Modified by the author from Idei vashego doma online platform article, https://www.ivd.ru/pereplanirovki/custom_house/custom_flat/1100).

Like most of the respondents for this study, the owner of a five-room apartment, Mykola H., invited me straight to the kitchen when I came in to interview him. His large kitchen consisted of three overlapping zones: a cooking zone, a large dining table with six chairs, and a couch facing a widescreen television. Mykola, who purchased this apartment in the mid-1990s, explained that although different family members preferred different rooms, the kitchen was the most populated space in his home and was where all family and extended gatherings took place, like “when children and grandchildren get back from Kyiv, for instance, for New Year’s.” Indeed, although remodeling in this apartment ended in the early 2000s, the rest of the apartment was less inhabited: the furniture was minimal, and some rooms appeared to be rarely used. Mykola explained that even during gatherings, both friends and family barely made it “to those living rooms out there [in the apartment].”92

A kitchen bench from the late 1980s.

FIGURE 3.8. A kitchen bench (miagkiy ugolok) purchased as a luxury item in the late 1980s. (Photograph courtesy of Anna Egorova.)

Similarly, a large multifunctional kitchen remained a favorite place for another apartment resident, Iryna M. When she first visited the apartment with her father as a child, her “father and Uncle Misha [apartment owner] would sit in the kitchen and play backgammon. They would lock the kitchen door and smoke there. Uncle Misha did not turn on the heating; he would just light one stove burner and warm up from it.”93 As she grew up and moved to the apartment she used to visit, she continued to spend time and invite guests to the kitchen. When asked where she spent time with guests, she said, “Always in the kitchen. Sometimes we do go to [one of] the rooms; it is comfortable there too with a coffee table and a couch. But it is really always in the kitchen, and in summer we sometimes spend time on the balcony.”94 While the previous apartment resident only had chairs for seating in the kitchen, current resident Iryna brought in a couch and a long bench, finalizing the function of the kitchen as a social space.

These two examples illustrate a contemporary use of kitchens in large apartments, but the same is true for small ones. A resident of a one-room apartment, Mariia K., started a major kitchen remodeling because when she moved into her apartment, her kitchen was “the most used” and the most “worn out” of the apartment spaces. Mariia explains: “Because I have a one-room apartment, and the other room is my sleeping space, I spend a lot of time here [in the kitchen] and so do my guests. I wanted it [the kitchen] to look pleasant.”95 After remodeling the kitchen, Mariia switched from a Soviet-inherited rectangular table to a compact round table that is convenient for arranging dinner parties or drinks. Besides remodeling the cooking area, Mariia rezoned her kitchen. “Back then [before remodeling], when I had guests, they all nestled where they could: on the windowsill, a couple of people on one chair, or they sat on the countertop when there were a lot of people.”96 The new round table was placed into a corner where, due to its shape and placement, it comfortably sat more people, and the fridge moved back to where the table was and was no longer the first thing guests faced when they entered the kitchen.

The Favorite Place in a Home

In 2010, Elizabeth Cromley observed that after a century of division between food storage, preparation, and consumption, in the second half of the twentieth century, American homes have reunited these food practices in a “hearth of the home”: a kitchen and a family room combined.97 The wall between the family room and the kitchen came down; Cromley’s review of homemaking media indicated the preference for a cooking island that allowed the cook(s) to socialize with the rest of a home’s population instead of the blind wall of a Frankfurt kitchen, which separated the labor of cooking from the rest of the domestic functions. Cromley’s observation was fundamental: the wall was no longer there. There was, however, something else that went beyond whether the wall existed—the functions of cooking, eating, and food storage themselves.

The Soviet and post-Soviet apartments’ limited space and the many socio-spatial transformations around the collapse of the USSR show that the wall may, but does not have to, come down in order for the architecture and the spatial uses of a home to change. With the boundary between casual and formal dining blurred, the formerly separate food spaces came to overlap. The post-Soviet urbanites demonstrated a tendency formally similar to the one described by Cromley: to combine a kitchen with a living room.98 The difference was that instead of demolishing a wall, they often simply moved the living room functions into the existing kitchen.

Despite the limitations of prefabricated construction and because of the newly emerged freedom to spatially modify one’s home, a post-Soviet apartment finalized an already-existing vector toward removing spatial use bias: even sleeping on the couch placed in the kitchen no longer seemed to be oxymoronic nor scandalous. After the collapse of the Soviet Union and the elimination of censorship, the kitchen largely lost its role as a political club. Nevertheless, it did not lose the status of a “favorite place” in the post-Soviet home.99 Instead, the kitchen gained a new dimension: a favorite place to improve and transform according to individual desires and needs.

Several years ago, Moscow authorities started tearing down early Khrushchev-era prefabricated buildings with the 4.5-square-meter (forty-eight-square-foot) kitchens. The official agenda of the city is that these buildings are morally and physically obsolete, meaning that they no longer fit the contemporary requirements for housing, and they especially fall short of new kitchen standards.100 Ironically, the contemporary food-related practices of the post-Soviet apartment dwellers are flesh and blood of these compact Soviet apartments. These buildings left an imprint on the spatial imagination of generations of Soviet and post-Soviet urbanites, just like these apartment dwellers left their marks—hollowed out and demolished walls and constructed partitions—on the body of the grand Soviet mass housing project.

Annotate

Next Chapter
4. Cleaning
PreviousNext
All rights reserved
Powered by Manifold Scholarship. Learn more at
Opens in new tab or windowmanifoldapp.org