2 SLEEPING
Under the Soviet system bedrooms are not permitted.
—Mikhail Bulgakov, Zoyka’s Apartment
Sleep, arguably the most important function of a home, is in many cultures associated with a special space—the bedroom. This common understanding, however, has been frequently undermined by the reality of urban living, apartment homes in particular.1 The late- and post-Soviet spaces for sleep were not an exclusion. In Russian and many other Slavic post-Soviet languages, the word for bedroom is ambiguous: spalnia (from the verb spat’, to sleep) does not specify whether it is a room or some other sort of space. The fluidity of the word spalnia is, of course, coincidental to late-Soviet urban living conditions, yet it accurately defines them. A space for sleep did not have to be a room; this space did not even require a bed; it happened where and when sleep was possible and acceptable. The understanding of a space suitable for sleeping drastically transformed into several trajectories after the collapse of the Soviet Union in 1991. This chapter undertakes the task of tracking the precursors, process, and outcomes of this transformation.
The chapter begins with the story of the late-Soviet and post-Soviet sleeping spaces through the brief account of the urban bedroom’s rise and fall in the twentieth century. With the help of an inquiry into the normative floor areas, daily practices, and rhythms, it explains the spaces of sleep typical for late-Soviet urban apartments. This chapter then demonstrates how the desire for private sleeping space became normalized and how private space for sleep turned from dream to reality in the post-Soviet replanning projects.
Soviet housing politics produced a heavily regulated urban household: it had to strictly adhere to the upper limitations of floor area and room numbers per person. While these rules were no longer relevant after 1991, some of the formal tendencies forged under the USSR persisted. Such was the tendency for rooms to be multi- rather than monofunctional. However, the similarities in form (such as the same number of people in the apartment) should not be perceived as an ultimate sign that nothing has changed. Dependent on their economic and social standing, post-Soviet urbanites took different paths in transforming their housing; apartments that used to be very similar radically diverged in their layouts and functional zones with the help of newly built or demolished partitions, different furniture arrangements, and different resident demographics that led to varying uses. Many formally opposite tendencies could be used to bring about similar results. For example, a private sleeping space could have been achieved by either building or demolishing a partition wall. Therefore, this chapter first investigates the preconditions for the rise in the plurality of the post-Soviet approaches to apartment form and then looks at the similarities among different apartment spatial organizations that emerged after 1991.
Sleeping Space in the Twentieth Century
The seeds for many of the housing tendencies that surfaced after the collapse of the Soviet Union in 1991 were planted decades prior to this historic rupture. Soviet apartment housing is a relatively known subject: there exists a substantial amount of scholarly and popular explorations into the nature of the Soviet communal apartments, modernist experiments in the 1920s by Russian Constructivists, and Stalin-era and Khrushchev-era apartment housing.2 But what did those Soviet apartments evolve from? Prior to 1917, revenue houses represented a large portion of the urban apartment housing. This type of housing was spread all over Europe and the Russian Empire, with apartments found in the Russian Empire cities not being drastically different from those in the West. A modest apartment that would have housed a typical bureaucrat in Saint Petersburg at the end of the nineteenth century consisted of a master’s block—an entry space, a living room, an office space, a dining room, a bedroom, and a bathroom—and a servants’ block—a small bedroom and a kitchen. Those with lower incomes rented separate rooms or even “corners”—spaces within a room occupied by multiple unrelated people. The situation with corners was particularly typical for Saint Petersburg, the capital of the Russian Empire. A picturesque description of a poor and dilapidated rental room in a prerevolutionary Saint Petersburg can be found in Dostoevsky’s description of his protagonist, Raskolnikov, and his housing situation: “It was a tiny cupboard of a room about six paces in length. It had a poverty-stricken appearance with its dusty yellow paper peeling off the walls, and it was so low-pitched that a man of more than average height was ill at ease in it and felt every moment that he would knock his head against the ceiling.”3
This is what cheap by-room rental housing looked like in prerevolutionary Saint Petersburg, the conditions clearly miserable and not unlike the tenements elsewhere in the world. However, the Soviet communal apartment took shared apartment living to a completely different level. From the very beginning of the Bolshevik rule, Soviet cities were overpopulated due to rapid industrialization, the mass migration of rural populations to cities, and the reluctance of the early Soviet state to allocate money and resources to housing. After coming to power, the Bolsheviks relocated most of the housing resources from the middle and upper class to the workers, turning the majority of urban apartments into communal living settings, similar to earlier rooms and corners. This requisition of rooms from the rich in favor of the poor became known as compaction (uplotnenie). The resulting communal living apartments (kommunal’nye kvartiry, or kommunalki for short) consisted of unrelated families or individuals occupying separate rooms or partitioned half rooms of the former single-family apartments and sharing amenities: a hallway, a single kitchen, and a bathroom. Although this move may have saved Soviet cities from mass homelessness, it did not provide a sustainable and dignified solution to the housing shortage. Instead, it formalized the crowded housing conditions all the way until the late 1950s and beyond.
Communal apartments were the main type of housing available to Soviet urbanites until the beginning of the mass housing campaign launched by Khrushchev in 1957.4 For the first time in Soviet history, Khrushchev called for providing every family with their own personal apartment.5 Despite the state policy shift from communal to individual living, the lifestyles and domestic settings consolidated in the early communal apartments persisted through the rest of the twentieth century and above and beyond the communal apartment type.6 A typical 1960s three-member family domestic setting in communal apartments is described in Yuri Trifonov’s short story “Exchange”:
[His] daughter slept behind the folding screen in the corner. Her desk, where she did her homework at night, was also there. Dmitriev made her a bookshelf, put it above the desk and conducted an electric wire for a desk lamp. He put together a special room behind the screen, “solitary unit” [odinochka], as they [jokingly] called it in the family. Dmitriev and Lena slept on a wide Czechoslovakia-made couch that they were lucky to buy three years ago and that since then has caused jealousy of their acquaintances. The couch stood by the window and was separated from the “solitary unit” with a decoratively carved oak cupboard; a grotesque object that Lena inherited from her grandmother and that Dmitriev frequently suggested to sell. Lena agreed, but his mother-in-law was against it.7
While set in a communal apartment, a similar overlay of domestic functions would have persisted into a one- or two-room private apartment that this family would have been assigned according to Soviet regulations.8 In a home described by Trifonov, functions could not have been spatially separated since the home of the family of three was limited to one room. Similar to many types of domestic spaces throughout human history—a yurt, a hut, or a rented apartment room in an industrializing city—the home stayed unprescribed and changeable, limited only by the pressure of the outside world and the floor area inside its walls.
A family like the one from “Exchange” was meant to move to a new personal apartment in a modular khrushchevka house,9 where they would no longer have been limited to one room but would have enjoyed the luxury of two rooms and private amenities: kitchen, bathroom, and some storage space.10 Khrushchevkas, without a doubt, greatly improved the conditions of life of the Soviet urbanites; yet the fluid use of space characteristic of their prior communal apartment existence remained.
Numbers and Bureaucracy
The story of the Soviet sleeping space continues with numbers. “The citizens of the USSR have a right for housing,” stated article 44 of the Soviet Constitution in 1977.11 A simple and seemingly straightforward statement on paper, in practice it took the form of a mathematical problem.
The major principle in Soviet housing distribution grew from the early days of housing requisition after the 1917 Bolshevik Revolution. According to Bolshevik logic, housing resources had to be allocated by the state. Starting from its early days and throughout the rest of Soviet history, housing allocation by the state remained the predominant way to get housing. In August 1918, the All-Russian Central Executive Committee finalized the legalization of apartment or room requisition by canceling private property on real estate in cities.12 According to Lenin, an apartment was subject to compaction “if the number of rooms in this apartment equaled or outnumbered the number of persons.”13 In 1919 the People’s Commissariat of Healthcare developed sanitary norms of ten square meters of housing for each adult with an additional five square meters for each two- to twelve-year-old child.14 This norm shifted within a range of a couple of square meters throughout the Soviet history, but the logic of a limited floor area per person remained the same.
By Brezhnev’s times, the Housing Code of the Russian Federative SSR specified that an adult citizen had a right to seven (1970s) to nine (1980s) square meters of housing and that an adult citizen was only eligible for state-initiated relocation if they were limited to less than five square meters of area in their already existing housing.15 In addition, Soviet authorities followed a rule derived from Lenin’s statement on rooms: an apartment was allocated to a family based on a k = n − 1 formula, where k16 represented the number of rooms and n represented the number of people to live in the apartment. A room in this case is any separate livable space other than the kitchen, bathroom, and entryway that was separated with walls and had windows. For instance, based on this simple formula, a family of three—two parents and a child—would have received a two-room apartment. A family of four—a grandparent, two parents, and a child, or two parents and two children—had a right to a three-room home. If a similar formula was used to describe the typical plan of a post-World War II American single-family home, it would look like k = n + 1, where 1 would represent the designated living room.
Architect and author Vladimir Papernyi, a former dweller of a Soviet apartment, describes this quality of Soviet housing in his book Kul’tura Dva: “In this [Lenin’s] formula … there essentially is everything that is later going to create such an acute condition of a communal apartment, since this formula fixes an impossibility for each person to have a separate room.”17 Papernyi supports his point with a famous and archetypal quote from Mikhail Bulgakov’s 1920s novel Heart of a Dog, where an apartment dweller—respectable medical professor Philip Philippovich—is approached by the newly assigned communist House Committee:
“… this is precisely what we have come to talk to you about—the dining room and the examination room. The general meeting asks you voluntarily and by way of labor discipline to give up your dining room. Nobody has a dining room in Moscow.”
“Not even Isadora Duncan,” the woman cried in a ringing voice.18
…
“And the examination room too,” continued Shvonder. “The examination room can perfectly well be combined with the office.”
“Uhum,” said Philip Philippovich in a strange voice. “And where am I to take my meals?”
“In the bedroom,” the four answered in chorus.
The purple of Philip Philippovich’s face assumed a grayish tinge.
“Eat in the bedroom,” he said in a slightly choked voice, “read in the examination room, and examine patients in the dining room. It is very possible that Isadora Duncan does just this … But I am not Isadora Duncan! …” he barked out suddenly, and the purple of his face turned yellow. “I shall dine in the dining room, and operate in the surgery!”19
Although fictional Philip Philippovich wins the fight over rooms as far as the Soviet 1920s go, the nonfictional former and contemporary proletarians and elites of the Soviet Union soon found themselves stripped of precisely what is questioned in Bulgakov’s passage: room identity. While the concept of a communal apartment soon proved to be problematic, and an official program for a separate apartment for every family was launched in the 1950s,20 apartment rooms largely did not regain their identity until the collapse of the Soviet Union or to this day. Moreover, the meaning of a room itself, as a unit of lived space, became compromised through the Soviet approach. The Soviets introduced a new form of thinking about housing conditions: not by rooms, not even by corners, like before the 1917 Bolshevik Revolution, but by the number of square meters. This type of thinking virtually disregarded walls and did not speak of the necessity of the housing to perform certain functions but rather only of the floor area offered to every Soviet citizen. Just one room of a communal apartment could now have hosted most of the domestic functions at once, sometimes even including cooking and hygiene. A room, as a container for separate functions or old forms of bourgeois privacy, was no longer to be found.
In the Soviet Union, Sanitary Norms and Regulations (Sanitarnye normy i pravila, or SNiP for short) were a set of documents equivalent to the Building Code. They defined the upper and lower area limits for each apartment of the forthcoming apartment block. These norms were typically developed by the Central Research and Design Institute for Residential and Public Buildings (TsNIIEP zhilishcha), approved by the State Committee for Construction of the USSR (Gosstroi) and published by Construction Publishing (Stroiizdat), and primarily circulated among architecture and construction professionals and bureaucrats. They meticulously defined the way Soviet housing had to be designed, constructed, and used.21 The absolute majority of Soviet housing, other than housing built for top elites, was built according to social norms and could not go below or over the limits established by the Sanitary Norms and Regulations.
The Soviet SNiP differentiated between the so-called living area (zhilaia ploshad’)—floor area of the rooms, excluding kitchen, bathroom, toilet room (if any), and hallways—and effective area (poleznaia ploshad’)—floor area of the entire apartment.22 The limits of the living area for a typical urban housing unit during different time periods were as shown in table 2.1.
In addition, in 1985 and 1989, SNiP specified that an area of a room had to be no less than eight square meters. This regulation number grew throughout the Soviet history, originally starting at six square meters in 1962.
Starting from Khrushchev’s 1955 manifesto “On Elimination of Excesses in Design and Construction,” frugality and construction went hand in hand. Apartment buildings were no longer supposed to make an impression but rather house as many families as possible in modest but private apartments. Since housing design and construction had to be frugal, real-life apartment floor areas rarely reached the upper limits defined by the Sanitary Norms and Regulations and stayed closer to the lower ones. Since housing was predominantly designed in series—sets of plans, sections, details, and material specifications used repeatedly for construction in different locations—it is possible to identify typical floor areas and apartment layouts. A typical Khrushchev-era apartment from one of the popular series (1–335, 1–434, 1–464, or 1-480) reached thirty-one to thirty-three square meters for a one-room home, forty-six to forty-eight square meters for a two-room home, and fifty-six to fifty-eight square meters for a three-room home.
More than ever before, in the 1950s and 1960s, residential design became determined by mathematical equations. A 1966 edited volume on mass housing development in the Ukrainian SSR identified that apartments were to be developed with an average floor area of S, where S was determined by two variables: an average family composition n and an average square footage per person H. The average number of family members for Ukraine was determined at 3,4 persons (as of 1959), while an average for Uzbek SSR was established at 4,1 persons. This statistical data was followed by a calculation of cubic air volume per an adult necessary for healthy living and light homework. Heavy with detailed statistics, this overview nevertheless ended in a near-qualitative conclusion: a one-room apartment was a good fit for two people, a two-room apartment could fit three, a three-room apartment would suit four to five people, and six and more people deserved five rooms.23
Brezhnev’s famous formula “economy has to be frugal,” first presented at the 1981 26th Congress of the Communist Party of the Soviet Union, signified the continuation of earlier Khrushchev thriftiness for floor area and materials into the 1970s and 1980s. Since the problems with the tiny spaces of early modular apartments were already recognized, the 1970s apartment series were built with only a slight increase in the overall floor area but with a tangible increase in quality of life due to slightly bigger kitchens, higher ceilings, and better temperature and soundproofing. The tendency to enlarge kitchens, ceiling heights, and overall floor area continued through the 1980s. However, the logic behind the distribution of apartments along the k = n − 1 formula did not change. The size of rooms grew, but the functional use remained the same due to the same number of rooms being offered to families of the same composition.24
Keeping in mind that the number of rooms had to equal the number of occupants minus one, a typical Soviet family had a manner of household spatial organization rather different from that of the Western European or US situation. The number of functions in a typical household—sleeping (bedroom), eating (kitchen), entertainment and rest (living room), homework or household work such as sewing (workspace)—inevitably outnumbered the number of available rooms. In practice, this meant that no room could ever have one single function. A room that hosted sleeping at night would host entertainment and represent the functions of a living room during the day. Although such a situation was not exclusive to the late Soviet Union, unlike in most other cities around the world, it was a prescribed norm covering the entire population, except for the extreme elites.
In the late 1970s and 1980s, Gosstroi hosted multiple architectural competitions for the first-generation (Khrushchev-era) mass housing modernization solutions and new types of urban apartments. These conceptual competitions showed expanded floor areas, bigger rooms, and less utilitarian plans. They casually included double beds—a characteristic sign of a monofunctional room—but they still followed the k = n − 1 rule. For instance, a two-room (not two-bedroom) apartment had one room shown as a bedroom with a double bed and another room shown as a living room with a sectional couch, yet the same apartment was supposed to be suitable for three people (figure 2.1).25 If such an apartment were ever built, those three occupants would have a couple of different options: to sleep in one room all together, which would make a double bed virtually impossible, or to have one or two people sleep in the walk-through room.
The walk-through room typically preserved its social and entertainment functions: the TV and the couch, as well as the glass cabinet with occasion tableware or bookshelves.26 The person(s) allocated in this quasi-walk-through living room would have to unpack their bedding at night and hide or cover it in the morning for the daytime social, rest, and domestic work functions. Their clothes would need to be stored elsewhere or a wardrobe would need to be placed in the living room. Most importantly, everybody needing to get to the kitchen or bathroom at night would have to pass by their sleeping area. The rhythms and space of the household would need to be orchestrated in accordance with the sleep of the person staying in the walk-through room. Similar to Trifonov’s characters from “Exchange,” an occupant of the far room in a walk-through apartment had to first check whether the person in the walk-through room was asleep and then quietly sneak to wherever they were going without turning on the light.
The functional overlap within a small room (about sixteen square meters) forced the Soviet furniture industry to produce convertible or adjustable furniture for sleep, rest, entertainment, and social functions. The rise of the furniture industry in the USSR followed the end of World War II, Stalin’s death in 1952, and the shift to mass “compact” housing.27 Small domestic spaces in a mass-built apartment block required furniture smaller than that of the pre-war period, while the overlap of functions required this furniture to be multifunctional. This meant smaller dimensions and lighter materials: a piece of furniture that could have been easily taken up the stairs of the five-story Khrushchev-era buildings with no elevators.
A typical panel apartment from 1–464 series (first introduced in the late 1950s and built until the late 1970s) had two rooms—one was 3.2 meters (10.4 feet) wide, and the other was 2.6 meters (8.5 feet) wide. The latter room was isolated with no through traffic, seemingly well-suited for a bedroom. However, the dimensions and layout of this room did not allow for a comfortable placement of a double bed. If the 2.6-meter-wide room had contained a 1.8- to 2-meter-wide bed, an apartment dweller would be left with only several dozen centimeters to walk around it. A wall closet on one end of the room and a door on another end made it impossible to put a double bed into the room’s dead end and climb onto it without walking around. In other words, a regular double bed, as we think of it today, simply would not have fit. Although this situation changed with the later apartment series, the convertible furniture was already acquired, and the number of family members per room typically did not decrease.
A perfect piece of compact apartment furniture could also perform more than one function—such as sleep, entertainment, and socialization. This is why convertible couches or day beds became Soviet consumer ideals. The characters of Trifonov’s short story “Exchange” claim their Czechoslovakian convertible couch as the subject of their acquaintances’ jealousy despite its squeakiness.28 The Soviet PBS-style film The Time of the Great Housewarming, dedicated to the successes of mass housing construction in the 1950s and meant to promote panel apartment living, demonstrates a species of furniture earlier unseen in the Soviet domestic interiors: a single folding bed, similar to a horizontal Murphy bed familiar to Americans.29 A folding bed, however, lost in popularity to a convertible couch or a day bed, possibly because it was a part of a sectional piece that not every Soviet family could afford or find among the limited supply of Soviet stores. A 1972 Soviet brochure authored by Boris Merzhanov—head of a studio in TsNIIEP zhilishcha, a professor, and a major authority in Soviet residential architecture—suggests an interior for a “common” room of an apartment.30 The common room would host the sleep of a couple: “the two sleeping spots—two couches placed at an angle—create a well isolated zone for rest.” An illustration for this setting shows a television set in front of one of the couches that helps clarify Merzhanov’s “rest” as a space that will be used not only for sleep but also for socialization (figure 2.2). The abundance of convertible or multifunctional furniture in the late-Soviet home inspired material culture scholar Victor Buchli to speak about it as a new mode of everyday life, a new byt,31 enforced by the state as an attempt to fight the petite bourgeois Stalin-era domestic aesthetics.
FIGURE 2.1. Published architectural projects from the “Modernization and Reconstruction of the Early Series Apartment Housing” contest catalogue, Gosstroi, 1987.
FIGURE 2.2. An illustration from Boris Merzhanov’s Inter’er zhilishcha (Residential interior) illustrating the use of multifunctional or convertible furniture (1970). (Courtesy of Znanie Publishing House.)
The Rise of the Bedroom
After 1991, a new domestic space emerged within apartment homes: a separate bedroom that primarily hosted sleep. While the interest in remodeling clearly started in the late 1980s, the physical emergence of the post-Soviet bedroom could be traced to two later events: the beginning of the housing privatization campaign and the beginning of drywall import and production.
Let us start with privatization. The first legislation establishing unlimited private property rights appeared in the USSR in March 1990 and continued appearing in the former Soviet republics into 1991.32 The Russian Soviet Federative Socialist Republic enacted a new property law on January 1, 1991.33 The same law also contained a statement on property privatization.34 The Supreme Council of the Ukrainian Soviet Socialist Republic passed the new “About Property” law in April 1991.35 Similar laws were passed by the lawmaking institutions of the other republics. The umbrella law of the USSR and the local laws enacted in separate republics all introduced private property and general mechanisms for privatization of property, as well as the legal right to sell or buy private property and use private property for profit. This ultimately meant that the k = n − 1 rule became obsolete. The citizens of the still-standing USSR could now formally privatize and, hence, buy housing with the number of rooms based only on their desires, needs, and financial abilities.
The entire population of the USSR and the heir states did not immediately race into the business of privatizing, buying, and selling housing. But the possibility produced fundamentally new housing opportunities never seen before. In addition to selling or buying housing, people could now rent or lease apartments. Most importantly for this study, a family’s apartment could have enough rooms to separate room functions.
In reality, room segregation did not happen immediately, nor did it happen in every apartment. Despite the former Soviet societies going through extreme economic hardship due to the crash of the centralized economy and rapid inflation, the post-Soviet urban environment became saturated with money. Post-Soviet nouveau riche quickly put together capitals that by an order of magnitude outnumbered the resources of the rest of the society.36 Unlike the money of the previous regime, which had to be earned consistently in small increments over large periods of time and had very limited buying power, this new money in sufficient amounts could buy anything. This led to what may be called, for the sake of the argument, a post-Soviet-style gentrification. People whose income and life quality lowered dramatically in the 1990s could sell their apartments to those whose income dramatically grew. There was very little new construction in the first post-Soviet years. Instead, as shown in the previous chapter, many construction professionals shifted to remodeling existing apartments. In the early 1990s in particular, those were the apartments either purchased by foreigners or nouveau riche or purchased for the purpose of renting them out after improving their condition.
During the Soviet era, prior to the 1990–1991 shift in property laws, simply buying an apartment was a nearly impossible task. A person in need of housing during the late-Soviet decades had two ways to go: to apply for state housing and stay in a housing line for years or decades, or to become a member of a housing cooperative, invest money and effort into construction, and hopefully become an apartment resident within a couple years. Cooperatives, however, had their own problems, including high prices, the risk of losing a spot in a state housing line, and, when the apartment was finally rendered habitable, the necessity to receive permission from neighbors to trade apartments with another apartment dweller. After 1991, a person who had one way or another accumulated the necessary amount of money could simply buy an apartment from its previous owner and dramatically change their living conditions at will.
Therefore, the connection between privatization and a separate bedroom is simple: if one desired to have a separate bedroom and had enough resources, one could simply buy a bigger apartment. The role of construction materials, and drywall in particular, is a bit less straightforward. As described in the previous chapter, new materials and technologies entered the post-Soviet market, making previously impossible remodeling moves realistic. One such case is the construction of new partition walls, and the material essential to making this construction quick and precise—drywall.
Unlike some other materials, drywall was actually produced in the Soviet Union under the name of gypsum sheets (gipsovye listy) or dry stucco (sukhaia shtukaturka). As early as the late 1950s and 1960s, gypsum sheets appeared in the Sanitary Norms and Regulations37 and Soviet technical standards (Gosudarstvennye standarty or GOST).38 Gypsum sheets persisted in GOSTs in the 1970s and 1980s, indicating that this material was actively used in construction along with the usual partition material—gypsum concrete.39 However, due to how products were distributed within the giant centralized economy of the USSR, many places never saw drywall in the construction on the ground, as the produced goods were allocated somewhere else in the country. Furthermore, gypsum sheets and gypsum concrete never entered the consumer market. At the same time, there was no easily accessible alternative sheet material for wall construction; everything accessible was rather inconvenient, like the Soviet method of wall construction called dranka: a form of sheathing in which a wall was constructed out of raw wood boards, then covered with a smaller diagonal grid of wooden planks and stuccoed over. A dranka partition wall obviously was hard and time-consuming to execute, especially for an individual inexperienced in construction. A dranka partition wall also rarely ever looked perfectly flat, no matter how much one tried. In the 1990s, different drywall manufacturers first started importing drywall to the former USSR and then began production in the post-Soviet countries. In the mid-and late-1990s, the German corporation Knauf Gips opened three factories in the Russian Federation, one factory in Ukraine, one factory in Moldova, and one factory in Kazakhstan.40 Over these first post-Soviet years, drywall became extremely popular in residential and other construction.
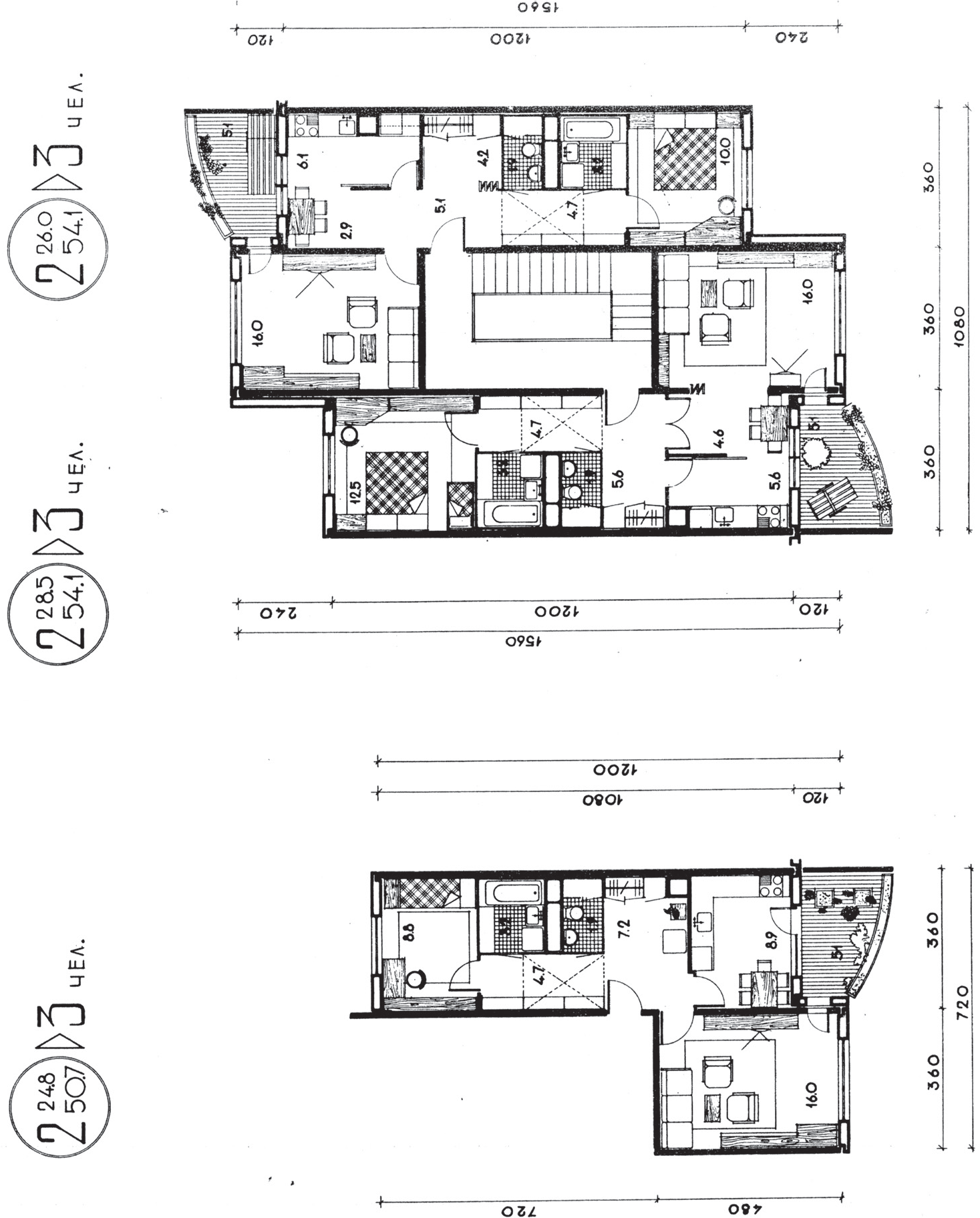
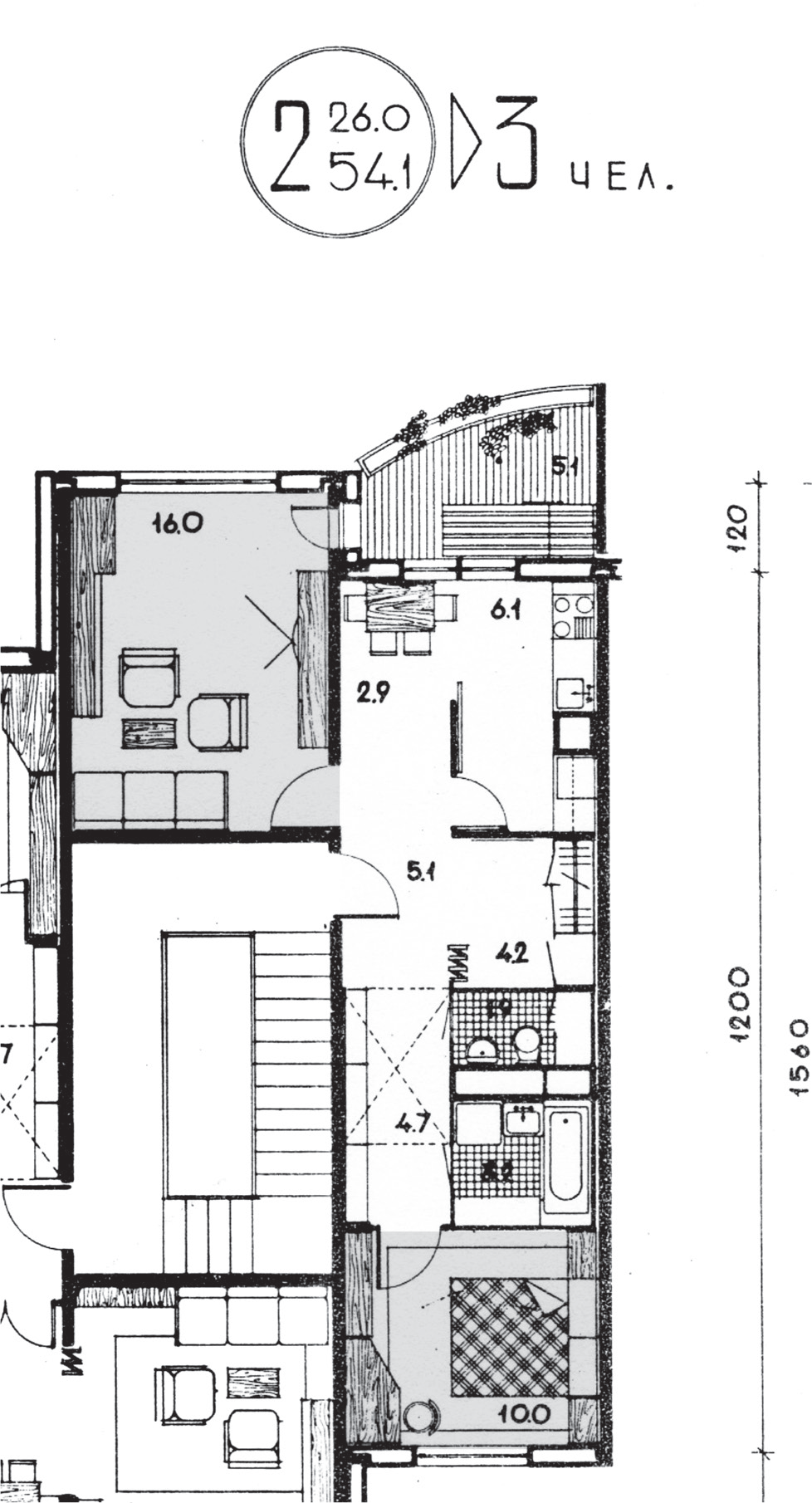
Due to the availability of new materials and construction labor for hire, apartment dwellers could easily remove walls and erect new ones, substantially changing the preexisting layouts of their apartments. This type of remodeling, referred to as replanning (pereplanirovka), could go in several seemingly opposite yet inherently related directions. Those directions can be illustrated with the case of a typical two-room Khrushchev-era apartment from the 1–447 apartment series (ca. mid-1950s to mid-1960s) (figure 2.3). The layout of the apartment is characteristic of all khrushchevkas—a tiny three-square-meter vestibule with doors to the bathroom and to a walk-through room. The walk-through room leads to the kitchen and another separate room.
FIGURE 2.3. Typical Khrushchev-era apartment plan transformations from Soviet to post-Soviet versions. (Drawing by the author.)
An apartment like that was originally meant for three people. The demographics of the residents could have ranged from a core family (two adults and a child) to several generations (such as a mother, a grandmother, and a child or an adult couple with one of their parents). After 1991, the dwellers of this apartment no longer had to be three. Let us look at several scenarios that happened to this apartment type and its bedroom with the advent of replanning and change in residential mobility.
If the apartment population decreased to one or two adults, they could have chosen to remove a wall between the kitchen and the walk-through room to expand the small kitchen area (typically 5.6–6.0 square meters) (figure 2.3). This change could have allowed the second, untouched room to accommodate sleep, while the rest of the overlapping functions could have been moved to the now open-plan living room/dining room/kitchen.
FIGURE 2.4. A room in a typical Khrushchev-era apartment, with furniture and layout preserved from the late-Soviet years. (Photograph courtesy of Yulia Savchenko.)
Replanning of this kind regularly appeared in media. For instance, an article in Idei vashego doma (Ideas for your home) from 2003 titled “In a khrushchevka” sets an example of a single young professional who removed all the internal, non-load-bearing walls in a two-room Khrushchev-era apartment to create a studio with an open plan.41 In 2005, kitchen wall removal for one type of two-room 1–335 series apartment appeared twice in Idei vashego doma (figure 2.5).42 Besides magazines, books on replanning offer their own general advice: “To get a large space for hosting guests, you can disassemble the wall between the existing kitchen, the small and the large room. Dining alone or with the family is more pleasant, when in a spacious rather than a jammed room.”43
This type of replanning is also illustrated in an interview with Hanna F. conducted as a part of this research.44 Her sister’s family of two adults and one young child replanned their two-room 1960s apartment in 1998. Originally, the apartment had an entry space with doors to all available spaces: two separate rooms and the kitchen, bathroom, and toilet. Since the kitchen was considered small, they decided to demolish the wall between the kitchen and the adjacent room. After the renovation, the newly created large space was used as a living room and a kid’s room. The other isolated room became a bedroom. In this case, a bedroom was used for rest and occasional homework. Hanna stated: “They are a family that did not watch television. Perhaps they had a TV at that point, but most likely it was in that room that was joined to the kitchen. But the bedroom was just the bedroom, because he [the husband] either slept or rested there or he worked there on his computer. In general, this was the parent’s zone.”45
FIGURE 2.5. Before and after apartment plans redrawn from Idei vashego doma magazine in “Prevrashcheniia khrushchevki” (Khrushchevka transformation) in 2005.
Yet even in this case, when one room was dedicated predominantly to the function of sleep, there were ways to quickly transform it upon necessity: “They had convertible furniture. They had one more convertible couch and they had a convertible bed built in to a closet. You know, one of those beds that you can lift and hide away. It used to be always folded out, but in case of necessity it could have been hidden away, so the room could have been transformed into a living room.”46
Another type of khrushchevka replanning involved creating a new wall and a small corridor to isolate the former walk-through room (figure 2.3). Although this solution required sacrificing some space of the walk-through room, it also allowed for both rooms to gain separate entries. This type of replanning is characteristic of multiple-generation or multiple-family occupancy of two-room apartments. During this research, only one respondent reported doing this type of replanning in his two-room apartment. In his case, the apartment was occupied by two adults (himself and his mother), and both were willing to sacrifice some of the already modest floor area to achieve more privacy through the construction of a new wall.47
Although such a case only came up once during the interview process, Recorder of Deeds engineers in Kyiv claimed that this type of replanning was among the most widespread in Khrushchev-era apartments (figure 2.3). Engineers, who recorded apartment layout changes, particularly noted that transformations like this were done to create private spaces for households composed of several core families.48 At the expense of the former-Soviet walk-through room, occupants of those apartments created separate spaces with more privacy for separate families or adults.
The choreographies of these apartments changed dramatically. Figure 2.5 shows an example of this transformation: the room that used to be a walk-through room is cut off with the help of a newly created corridor that now has entrances to both rooms. This meant that the room was no longer accessible to the extended family or friends in the same easy manner it used to be when it doubled as a social space. In an original layout, a walk-through room like that was previously perceived predominantly as a living room rather than somebody’s bedroom, even if it hosted somebody’s sleep at night.49 However, when it lost its walk-through quality, it became equal to the rest of the rooms in the apartment: the undetermined rooms, where functions were allocated arbitrarily, according to the number of family members and their needs. If an apartment was occupied by two or three generations and more than one core family, such replanning would have created separate family microcosms in each isolated room, with both sleep and socialization functions present in each of these rooms separately for separate core families.50 The same can be said about the second, non-walk-through room. Although the wall and the door separating this room from the rest of the apartment space have always been there, they have not previously isolated the room from the entirety of the apartment population or even guests.51 When the spatial functions no longer overlapped throughout the apartment but rather doubled in each private room, there was no longer a need for the rest of the apartment population to access this far room (figures 2.3, 2.5).
The world of material objects in these apartments also changed in a couple of distinct ways. The two most notable distinctions in the materiality of post-Soviet bedrooms followed commodity consumption models: the “poverty culture” of reuse and maintenance and the consumption economy of the newly rising commodity market.52 Commodity deficit and the very narrow choice of available goods caused Soviet urbanites to repair and reuse rather than throw away old or broken things. At the same time, the limited yet powerful introduction to imported capitalist and socialist bloc–manufactured goods induced a consumerist culture, different in form yet similar in nature to the consumerism of capitalist societies.53 Within the same average household, some pieces of furniture could have been repaired for decades, yet other pieces could have been vigorously hunted down (dostavat’) from the limited sales, through bribing, or through the informal economy.54 The 1991 introduction of the free market and unlimited commodity import invigorated and complicated naïve Soviet consumerism with the wide choice of product options. But most importantly, the border between poverty and consumerist cultures became much more evident. Repaired furniture became widely seen as a sign of low economic standing.55 On the other hand, relatively affordable new furniture became readily available through international retailers such as IKEA56 and JYSK57 or emerging local manufacturers and sellers. Repaired and new furniture could still coexist in one household if the dwellers had limited resources or found repairing old furniture appealing for aesthetic, sentimental, or hobby reasons. This meant that the international furniture types, such as a full bed or kitchen cabinet sets, entered post-Soviet households but did not completely replace convertible couches or single beds. Just like with the placement of sleep in an apartment, there was no one single route of physical transformation. At the same time, the sleeping furniture was now orchestrated according to the needs and resources of a household rather than according to the scenarios constructed by the apartment allocation policies.
Objects other than furniture populating post-Soviet apartments also changed. Soviet-made objects were not replaced by globally produced ones, but the social purpose of these objects changed a lot. The multifunctional Soviet spaces that also hosted sleep were populated with conspicuous setups and objects: the carefully orchestrated tableware sets, travel souvenirs, books, decorative figurines, and gadgets meant to signify the social position of the apartment dweller(s).58 These objects virtually followed the model formulated by David Stea for Mexico City dwellings in the 1990s. Stea writes that since all spaces of a middle-class home, other than spaces occupied by servants, were permeable for all members of the extended family, there were very few private objects.59 Instead, most objects to be found were to represent the social status of the core family.60 In a Soviet apartment, in a completely different social and spatial setting, the material culture consequences of the permeable room thresholds appeared similar: little to no private objects were left on display, and the nature of these private objects was highly dependent on social norms. The individual separation of space after replanning let the personal objects populate private rooms, be it an apartment turned into an open-plan single bedroom or a walk-through room apartment turned into several private rooms with equal functions.
Space, Rhythms, Collective, and Private Sleep
Most importantly, what kind of implications did these changes have for a post-Soviet sleeping space? In place of the old spatial performances and rhythms of an average Soviet apartment, there emerged several new types of spatial organizations and dwelling routines. According to their new income, apartment dwellers were either able to isolate sleep from the rest of domestic functions by locating it in a separate room or complicate a spatial overlap by stuffing even more functions and people into one separate, former walk-through room. On a surface level these two ends of a typical apartment-transformation spectrum look opposite to each other. However, under a closer look they are not that different in their motivation and conceptual outcomes. Both sleeping space scenarios revolve around the concept of privacy.
A Soviet apartment changed every night and every morning to accommodate sleep, in the absence of places designated to be for sleep only. After the collapse of the Soviet Union and the popularization of apartment replanning, as well as the introduction of new property laws, there emerged a number of households where the apartment dwellers were able to designate a separate space only to sleeping—a bedroom in a familiar, Western sense of the word. This room, empty during the day, only became populated during the night. It also provided a space perfectly separated from the representative part of an apartment: no longer did this room have to be transformed in order to host guests. A bedroom brought a sense of privacy rarely present in Soviet apartments—a space with entrance limited to only one or two bedroom occupants rather than anybody permanently or temporarily occupying the apartment space. For the first time in their lives, many post-Soviet adults could control their own private living space and construct their own daily rhythms independent of the other apartment dwellers.
Due to the end of governmental housing supply and the growing income inequality, frequently multiple related nuclear families lived in the same apartment.61 When a new wall was built to separate entrances into two adjacent rooms, the dwellers of these rooms lost the former shared socialization and representational space—their daytime living room and nighttime quasi-bedroom. Instead, they gained more privacy within their own personal rooms. No longer did they have to walk past somebody sleeping at night to get to the far room; no longer did the occupant of the walk-through room have to hide elsewhere to gain the privacy of a closed door. The room was now isolated in the same way the other one was from the very beginning, and the occupants of different rooms appeared equal in their spatial settings.
An interview with two generations of the same family, who now live separately and differently, addresses the construction of their sleeping space and illustrates the plurality of sleep space models that emerged after the collapse of the USSR. Oksana H. is in her mid-fifties and is a current-day resident of a four-room apartment in an apartment series building (ca. late 1990s). She shares her experiences of bedroom settings throughout her life before her present housing situation (moved in the first decade of the 2000s). Currently, she lives with her husband and younger son; her older daughter has moved out of her parents’ place and has an apartment of her own.
Oksana recalls that before this current apartment, she “only had my private bedroom once, when my brother was in the army, and I still stayed with my parents for some time. It was literally a half a year. That was the only time when I had a personal bedroom.” She states that what matters most to her “is not even bedroom per se. As I sew at home, I need a space to set a sewing machine. When we [two adults and two children] lived in the dormitory in one room, the sewing machine was in the kitchen. It was impossible to move in there [due to the lack of space]. Now when there is a room, I can at least place the sewing machine and not have to disassemble it. It is always standing there, and I can sit down and sew [anytime]. I don’t have to pack it and hide it anywhere.” “So, your bedroom is not just a bedroom, but also a workspace?” I ask. “Yes, an office. Children have it the same way too—everything is in their rooms.”62 Her daughter is in her early thirties and lives with her partner in a two-room apartment. She has a different setting: “Our bedroom is just a bedroom. We sometimes come home at different times. Because of this our workplace is in the living room; while one of us is asleep another one can keep working.”63
If the spaces for sleep have been transformed in multiple ways since 1991, what can be concluded about the nature of these transformations? Despite the multiple strategies and the growing material and economic stratification of post-Soviet apartment dwellers, there is something all of these transformations, instigated by both poverty and wealth, had in common. The two most important categories shared by all transformed sleep spaces are their newly emerged privacy and the changed everyday rhythms.
The spatial privacy part is simple. Whether post-Soviet apartment dwellers succeeded in gaining more privately occupied sleep space by constructing new walls or removing old walls and acquiring full beds, the intent was always the same: to gain a space of one’s own, where sleep would happen on one’s own terms. Several studies of everyday life before the mass housing era agree: sleep of the Soviet citizen was not a private affair.64 Unlike the bourgeois bedroom, where a sleeper’s body was separated from the rest of society with walls and doors, a Soviet sleeper’s body was seen, heard, and regulated by the other members of society. The bourgeois shame attached to nighttime sleep that Norbert Elias described in his book The Civilizing Process fell victim to the earliest Soviet attempts to eradicate everything old, capitalist, and bourgeois-proper.65 The fight on shame in the first Soviet decade sometimes took bizarre and extreme forms, like the radical nudist “Down with the Shame!” Society active in the mid-1920s. The society’s activities included naked marches through the streets of Soviet cities, Moscow in particular, to encourage communists to abandon bourgeois shame of the naked body. Its activities were not met with much enthusiasm by the general public or by the state.66
FIGURE 2.6. 1) A plan of a two-room apartment (I-515/5 series) before remodeling and replanning; 2) and 3) Plans of the same apartment replanned to have two isolated bedrooms and a separate living room space. Both of these replanning options indicate a separation between nighttime and daytime spaces. Both suggest direct access to each bedroom from a shared space. (Redrawn from Ruslan Kirnichanskiy, “Pereplanirovka: Modernizatsiia dvukhkomnatnoi kvartiry v khrushchevke I-515/5,” Houzz, September 3, 2015, https://www.houzz.ru/ideabooks/52262255/list/pereplanirovka-modernizatsiya-dvuhkomnatnoy-kvartiry-v-hrushchevke-1-515-5.)
Removing clothing may have been too much for the early communist state, but removing the isolation of a bedroom was a universal state strategy, as the Soviet backbone proletariat class was not unused to the “corners” in rental apartments and barracks. Sleep had to be undertaken as a collective act and had to be ideologically correct, thus performed in spaces where no private misbehavior could escape the socialist public view.67 The Stalin-era collective sleep of a communal apartment fell out of favor in the late 1950s; yet the sleep of an individual in mass-built apartments still did not become private. Sleep rather shifted from a collective to a core family group, where members were still to participate in building socialism, if not in the entire state then within each given apartment.68
Perestroika and the fall of the USSR changed this dynamic with spatial imagination no longer rotating around a collective or a core family but an individual. The dream of an individual space led Soviet urbanites to all kinds of contrivances. In 1992, Rabotnitsa magazine published an article eloquently titled “Your Dream: A Private Bedroom.” The article suggested separating a corner of the room with a specially constructed podium and a frame with a curtain, promising that even in a small apartment a dream of a private bedroom can come true.69
One of the interviewees for the project explained the separation of a walk-through room that he and his mother undertook in their two-room apartment: “We both simply wanted to have our own space.”70 Like in this interviewee’s case, a new wall and a new door to a former walk-through room may have not secured this then young adult a home separate from his parents, but it did provide a much broader ability to manipulate his own space the way he wanted to. In addition, it allowed him to adjust the daily rhythms within his individual room and the rest of the apartment since there was no longer an inhabited walk-through room between him and the shared utilities.
The change in daily rhythms and choreographies is no less important for the understanding of apartment transformation than the physical walls of the apartment. Henri Lefebvre offers a framework for thinking about rhythms in Rhythmanalysis. In the post-Spatial Turn disciplines, already dominated by Lefebvre’s principle of social construction of space, rhythmanalysis is frequently applied to understand the ways in which “the so-called natural rhythms”—the rhythms of the human organs, circadian rhythms, daily and seasonal repetitions in nature—“change for multiple, technological, socio-economic reasons.”71 According to Lefebvre, capital and capitalism have in many ways modeled everyday rhythms of an individual. While in agreement with Lefebvre, this study shows that the socialist regime has modeled everyday rhythms of its subject no less than the capitalist one.72 The sleep-wake rhythm of a Soviet apartment dweller locked in a k = n − 1 rule appeared codependent on the rest of the apartment collective. Only if the entire population of the apartment agreed to respect the sleep of the occupant(s) of the walk-through room could that sleep take place in comfortable circumstances. Even beyond personal relationships and agreements, different apartment dwellers may have had different requirements to their everyday rhythms: a younger generation would have left and returned early, adults would have left early and returned late, while the retired older population would have no need to wake up early or stay out late if not for the overlapping presence and nonmatching rhythms of the other two generations. The younger generation would have often been allocated to the private rather than walk-through room(s), so that adults and the older generation could enjoy some after-hours entertainment such as watching television while the younger generation was already asleep in an isolated room. The spatial functions of sleep, entertainment, nursing, socialization, and the daily rhythms of different family members overlapped, forcing the necessity of collective agreements and action.
Post-Soviet rhythms and sleep changed dramatically. Whether a young adult was able to afford an individual apartment or a family of two was allocated in a separate room, the post-Soviet apartment dwellers removed their sleeping space from the daily routine of social functions formerly happening in the same space that had hosted sleep at night (figure 2.6). The space of a separate room no longer had to be competed for; the television and other forms of entertainment now existed privately in separate rooms or in the still-shared spaces, such as the kitchen or a designated living room in bigger apartments. But even more importantly, there was no longer any traffic through the spaces of post-Soviet sleep and no group accord necessary for healthy sleep to be sustained. Individual sleep shifted from the realm of collective to the realm of private, with the daily rhythms no longer defined by the k = n − 1 rule but solely by the desire of an individual apartment dweller to privately orchestrate their sleep.