Skip to main content

Households in Context: 3

Households in Context
3
  • Show the following:

    Annotations
    Resources
  • Adjust appearance:

    Font
    Font style
    Color Scheme
    Light
    Dark
    Annotation contrast
    Low
    High
    Margins
  • Search within:
    • Notifications
    • Privacy
  • Project HomeHouseholds in Context
  • Projects
  • Learn more about Manifold

Notes

table of contents
  1. Preface and Acknowledgments
  2. List of Contributors
  3. Note on Abbreviations
  4. Introduction: Houses, Households, and Homes: Toward an Archaeology of Dwelling
  5. Part I Households in Spatial Context: Settlements, Neighborhoods, and Urbanism
    1. 1. Egyptian Houses in Their Urban and Environmental Contexts: Some Case Studies of the Roman and Late Roman Periods
    2. 2. Neighborhood Networks: The Civic and Social Organization of Accessways in Ancient Karanis
    3. 3. The Tower Houses of the Hellenistic Period: A Solution to the Urban Pressure within Egyptian Towns and Villages
  6. Part II Households in Social Context: Families, Individuals, and Communities
    1. 4. The Papyrus Trail: Houses and Households in Ptolemaic and Roman Egypt
    2. 5. Habitatio: Transfer of Houses and Rights of Residence in Roman Egypt
    3. 6. Unsafe Houses in Greco-Roman Egypt: Forms and Locations of Violence
  7. Part III Households in Practice: Production, Consumption, and Discard
    1. 7. Modes of Production and Reproduction in Roman-Era Egyptian Villages
    2. 8. Domestic Discard: The Making and Unmaking of Romano-Egyptian Houses
  8. Part IV Households in Cosmic Context: Religion and Ritual
    1. 9. Figurines and the Material Culture of Domestic Religion
    2. 10. The Supernatural Vulnerabilities of Domestic Space in Late Antique Egypt: Perspectives from the “Magical” Corpus
  9. Part V Expanding the Household: Dwelling Practices in Monastic and Military Contexts
    1. 11. Three Monks and a House: The Archaeology of Monastic Houses in Byzantine Egypt
    2. 12. Domestic Activities in Alternative Settings: The Ptolemaic Fort at Bi’r Samut, Egypt
  10. Afterwords: Perspectives from Pharaonic Egypt and the Greco-Roman World
    1. 1. Greco-Roman Households in Pharaonic Perspective
    2. 2. Contextualizing Houses, Households, and Homes in the Classical World and Beyond
  11. Index

3

The Tower Houses of the Hellenistic Period

A Solution to the Urban Pressure within Egyptian Towns and Villages

Gregory Marouard

The multistory house is a common feature of the Egyptian settlement landscape, and the urban house had probably incorporated upper levels for a long time before the Hellenistic Period. Archaeology often remains laconic, but iconographic sources attest to one or two stories in elite domestic contexts at least since the early New Kingdom, if not since the Middle Kingdom.1

The architectural study of urban settlements and habitats faces strong disparities that are unfortunately ubiquitous in Egyptian archaeology. If this assertion is particularly true for the dynastic phases, it also stands for the Greco-Roman Period in Egypt. Despite hundreds of examples of well-preserved houses and several extensively excavated sites, we face important chronological and geographical inequalities for this period. The Roman Period is far better represented than the Hellenistic Period, and archaeologists unfortunately rarely reach these earlier chronological horizons. There are also important geographical disparities. The peripheral fringes of the Fayum oasis have provided the overwhelming majority of domestic examples, but most were excavated fifty to eighty years ago, often using a hasty methodology. Even with the recent resumption of excavations at Tebtynis, Narmouthis, Philotheris, Karanis, or Dimeh-Soknopaiou Nesos, only the first of these sites has delivered significant excavation results and shed new light on domestic contexts from the Hellenistic phases. During the past two decades, sites in the Delta region have slightly rebalanced this situation by providing new examples about Ptolemaic domestic contexts: for instance, at Buto, Tell el-Dab’a, or Tell el-Balamun. But in these regions, the methodological complexity and limited state of preservation prohibit the opening of sizable excavation areas. Only geomagnetic survey can provide an extensive picture of urban patterns, but its depth is limited, and the distinction between the Ptolemaic, Roman, or earlier and later horizons is often difficult to evaluate. Archaeological projects in the Western Oases since the late 1980s (Kysis-Doush, Kellis, Mut, Amheida) have provided much new data, but are still extremely quiet for the Ptolemaic Period.

Karanis presents one of the most exceptional sets of domestic examples for the Roman Period, and scholars use this site intensively—sometimes inaccurately—to demonstrate an archetype of the domestic sphere or give a form to some of the houses mentioned in textual sources. But Karanis’s Roman contexts cannot really support any conclusions about earlier phases, and this site is of little help for studying the Ptolemaic Period. In order to illustrate the Hellenistic house and household, we must thus use a complex patchwork of examples and uneven fragments from various archaeological, iconographic, and textual sources.

In this contribution, I will attempt to define in detail a particular form of habitat—the tower house of the Ptolemaic Period—and the specific urban organization that accompanies it. Both seem inherited from a vernacular Egyptian tradition that dates back at least to the Saite Period and originates in the marshy regions of the Nile Delta. This type of multistory house, which is characterized by a peculiar system of foundations and a strong vertical development, apparently constituted the prevalent form of housing for at least six centuries, starting in the Late Period and covering almost the entire Ptolemaic Period. Those can be found regularly in many urban contexts, from the end of the fourth century to the mid-second century BCE, from the northernmost sites of the Delta to the southern border of Egypt at Aswan, although not yet in the Western Oases regions. Tower houses were the common solution for housing, indifferently used at diverse ranks of settlements (figure 3.1), from the nome capitals (Elephantine, Edfu, Buto) to the secondary agglomerations of the Delta (Tell el-Herr, Tell el-Balamun), as well as in religious communities in Middle Egypt (Tuna el-Gebel) and farming villages at the fringes of the Fayum oasis newly (re)settled by the first Lagid rulers (Tebtynis, Philadelphia, Soknopaiou Nesos, Bakchias, Karanis). This analysis puts the most recent archaeological data in dialogue with limestone or terracotta models, which allow us to attempt a three-dimensional reconstruction of this dwelling type.

Criteria for Identifying Ptolemaic Tower Houses

The predecessors of the tower houses appear to be the so-called casemate foundation buildings found throughout Late Period urban centers in the northern Nile Delta.2 Since the early 2000s, geomagnetic surveys of Nile Delta sites have revealed large densely urbanized areas: for instance, at Tell el-Fara’in-Buto,3 Tell el-Balamun,4 and recently at Naukratis or Tanis.5 There, dozens of similar units appeared in residential areas located outside the sacred precinct/temenos and largely datable to the Late Period (Saite/26th Dynasty and Persian Period).6 These results, combined with the higher-resolution satellite images,7 have provided many recent examples and helped identify existing, but previously unrecognized, examples from older excavations (Tell el-Nebesheh-Tell el-Faraon,8 Tell Atrib,9 Mendes,10 Tell el-Muqdam,11 Tukh el-Qaramus,12 Tell Tebilla).13 Old interpretations as exclusively official, administrative, or economic structures are no longer tenable, given the increasing number of new archaeological examples measuring under twenty-five to thirty meters on each side.14 More properly designated now as “cellular substructures” or “cellular foundations,” these constructions are the remains of the foundation level of multistory tower houses.15 The number and density of these installations, their dimensions, and their very similar plans leave little doubt about their domestic nature, which was clearly demonstrated by recent excavations. Exceptionally, the magnetic map of Kom A at Buto provides more than fifty examples of buildings with comparable layouts that form an extensive domestic neighborhood occupied for at least two centuries.16

Figure 3.1. A map of Greco-Roman Egypt, showing the locations of tower houses attested by archaeological finds.

Figure 3.1.Map of Greco-Roman Egypt, showing the locations of tower houses attested by archaeological finds. (Map G. Marouard.)

All these examples should be considered as the original models and prototypes for the Hellenistic-period structures to be described here. The Hellenistic houses are thus clearly inscribed within a continuous Egyptian domestic tradition and its associated organic urban pattern. The known Late Period examples are overwhelmingly located in the northern Nile Delta versus the rest of Egypt. However, even accounting for the random nature of previous research and the unequal geographic distribution of excavations in urban contexts, this ratio seems to change with the beginning of the Ptolemaic Period (figure 3.1). Examples from the Delta are still numerous, as at Buto,17 Tell el-Herr (figure 3.2),18 or Tell el-Dab’a,19 but many other examples appear from the Fayum oasis to Upper Egypt. To date more than thirty-five such structures have been archaeologically identified outside of the Delta region, although recent geomagnetic results suggest that a single site such as Tuna el-Gebel (figure 3.5) could easily triple this number.

Ptolemaic tower houses are well attested within the farming villages on the periphery of the Fayum oasis, such as Karanis, Dimeh/Soknopaiou Nesos, Philadelphia,20 Bakchias,21 and Tebtynis (figure 3.3). In the cases of Dimeh,22 Karanis,23 or Tebtynis,24 which are all three (re)foundations undertaken by the first Lagid rulers, the tower house is the only housing form attested for the very first phase of installation (third century BCE or, at Tebtynis, the last quarter of the fourth century BCE) (figure 3.4). The tower houses at those sites appear to belong to the oldest recognized occupation levels and are built directly onto the natural sand substratum. We are confronted here with the pioneer colonization phase at these newly (re)founded settlements.

The diffusion of mud-brick tower houses outside of the Delta obviously occurred at the end of the Late Period or the beginning of the Ptolemaic Period, perhaps because of the practical benefits of this kind of traditional domestic architecture, which was well adapted to Egyptian urban contexts. But the omnipresence of tower houses in the earliest levels of ex nihilo foundations might also possibly reveal the origin of the populations that were settled (maybe sent?) there in connection with the first Lagid rulers’ development of the Fayum periphery. This colonization process might have involved populations originally from the Delta regions, who would have pragmatically transposed their own familiar construction techniques and domestic architectural forms to the Fayum. Greek-inspired domestic and urban layouts were therefore perhaps rare or absent in the original landscape of these villages,25 and a formally planned colony such as Philadelphia, founded to accommodate Greek veterans, stands clearly as an exception.26

Tower houses also appear in Middle Egypt, at Tuna el-Gebel, where recent work by the University of Munich confirms the spread of this domestic form throughout Egypt.27 Geomagnetic survey has revealed about forty examples on both sides of the processional pathway to the animal necropolis (figure 3.5), and at least forty more at the settlement site of Kôm el-Loli (figure 3.5). Several excavated examples date to the early and mid-Ptolemaic Period, with a first phase dating to Ptolemy I–II (first half of the third century) and a second phase in the reign of Ptolemy VI (second quarter of the second century).28

Figure 3.2. A set of panels and aerial photos showing examples of tower house foundations in the Nile Delta region from the Late Period to the early Ptolemaic Period.

Figure 3.2.Examples of tower house foundations in the Nile Delta region from the Late Period to the early Ptolemaic Period. (Figure by G. Marouard, redrawn from Hartung 2009, fig.3; Marchi 2014, fig. 9; Herbich 2011, Pl. XVII; satellite view courtesy of ©Google Earth.)

Several other examples can be found further south on the Nile, but they often appear as a few scattered units: for instance, at Karnak,29 Medinet Habu,30 Tell Edfu,31 or Elephantine (figure 3.6).32 Aside from the oasean settlement sites in Kharga (e.g., Kysis) or Dakhla (Amheida), these four sites are the only Greco-Roman-era urban contexts significantly excavated and whose results have been partially published for Upper Egypt. Yet here too, each site has produced several tower houses, datable exclusively to the Ptolemaic Period.

Figure 3.3. A set of foundation plans comparing Ptolemaic tower houses from the Fayum oasis.

Figure 3.3.Examples of Ptolemaic tower house foundations from the Fayum oasis. (Figure by G. Marouard, redrawn from Davoli 1996, fig. 42 and 49; Hadji-Minaglou 2014, fig. 17; Viereck1928, fig. 2; Husselman 1979, Plan 5; and Boak 1935, Plan X.)

The presence of several floors above the ground level is not a sufficient criterion alone to characterize the morphology of the tower house, which is a very distinctive form within a large and diversified family of Egyptian multistory houses. As Greek textual sources equally emphasize, the tower house should not be confused with other types of multilevel houses.33

At all the sites where it has been identified, the Hellenistic tower house is very homogeneous in form, and the examples remain fully within a continuous tradition from the Late Period. Architectural specifics and archaeological characteristics, chronology, even their position in the urban landscape, have been well-defined since a recent conference on these structures.34

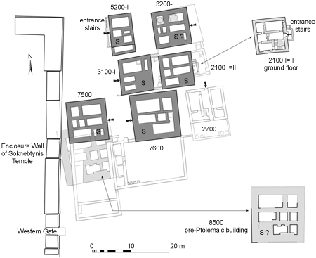
Figure 3.4. A settlement plan showing the domestic quarter from the late fourth and early third century BCE at Tebtynis, east of Soknebtynis temple.

Figure 3.4.Domestic quarter from the late fourth and early third century BCE at Tebtynis, east of Soknebtynis temple. (Figure by G. Marouard, reconstructed after Hadji-Minaglou 2007, fig. 4; and Hadji-Minaglou 2014, fig. 13.)

The criteria for identifying a tower house are as follows:

  • – A square or near-square plan, with dimensions ranging from 8.50 m to 15 m on each side and a ground surface area from 80 to 200 m2. The average length size is about 10 m to 12 m (examples at Tuna el-Gebel and Tebtynis show a consistent length, respectively between 9.30 m to 12.30 m and 8.40 m to 12.00 m) and an average ground surface area of 100 m2 to 140 m2.35
  • – A high and massive semi-buried foundation infrastructure, about two to three meters in height, of which a part always exceeds the surrounding levels on the exterior, such as the domestic courtyard or the street level (figure 3.9). This foundation is always carefully built with a “cellular” layout characterized by very thick outer walls. The masonry of all outer walls and internal partition walls always ties together at the corners to form a solid, freestanding base of strongly linked walls, in order to support a significant elevation.
    Figure 3.5. A set of panels with geomagnetic maps of settlement areas (top and bottom right) and two examples of tower house foundations at Tuna el-Gebel, Middle Egypt (bottom left).

    Figure 3.5.Geomagnetic maps of settlement areas and two examples of tower house foundations at Tuna el-Gebel, Middle Egypt. (Geomagnetic maps courtesy of M. Flossmann, LMU excavation project at Tuna el-Gebel.)

    Figure 3.6. A set of foundation plans for Ptolemaic tower houses from Upper Egypt.

    Figure 3.6.Examples of Ptolemaic tower house foundations from Upper Egypt. (Figure G. Marouard redrawn after Dreyer et al. 2008, fig. 4; Bruyère 1937, Plan IV; Hölscher 1934, Pl. 10; Lauffray 1995, fig. 6.)

  • – The outer wall thickness never measures under 1.00 meters; usually the walls are up to 1.20–1.50-meters thick and sometimes even 2.00 meters, particularly in the massive foundation.36 Our data do not currently permit establishing a precise relationship between the width of the walls and the original elevation of the house, which could reach two to three levels above the ground floor (four total floors).37 There is always a slight slope to the external face of the outer walls, generally more marked at the base of the building (figure 3.7). This external slope, like the wall thickness, decreased at higher elevations in order to lighten the weight of the upper-level masonry.
  • – At only one known site, Dimeh, the foundations were made of stone slabs (Houses IV-401 and IV-402, figure 3.3); otherwise, they were always mud brick.38 The mud bricks used for the foundation were sometimes better quality and higher density than those at higher levels. Walls employ a concave courses technique, or a combination of horizontal and concave courses with regular insertion of wooden elements and beds of reeds to limit rising dampness. This concave arrangement of brick courses helped channel vertical pressure toward the center of the walls and the center of the volume, and it relieved the building corners of stress and weight (figure 3.7). However, this concavity was not maintained continuously in the upper elevation. It was regularly corrected, usually in line with the separation between two floors, by a series of horizontal layers of mud bricks that provided a level surface for the horizontal beams and joists used for the ceiling and the floor above. A new series of curved courses was then mounted above. This construction detail is archaeologically attested at Tell Edfu and also appears on some tower house models (M1, figure 3.10).
  • – The infrastructure level has two main layout types. The first type is a series of disconnected square or rectangular underground spaces, so-called cellular foundations, which were often filled with construction debris or sand and used as crawl spaces, especially in the Delta. These spaces sometimes held underground silos, covered with a mud-brick dome and accessible from the top by an opening at the ground-floor level (figures 3.2, 3.4, 3.5, and 3.8). Usually, to maximize use of the underground surface, a so-called Nubian vault covered these spaces. All were accessible on one end by a hatch opening at the ground-floor level, thus forming a set of oblong, independent, vaulted cellars (figure 3.8). The second, rarer type of layout features vaulted rooms partly or completely interconnected by doors. This layout produced a basement level directly accessible from the ground floor through the staircase at the corner of the house, as with House IV-401 at Dimeh or the “maison centrale” at Tell Edfu (figures 3.3 and 3.6).
  • – The arrangement of all underground spaces follows a clear logic: a “tripartite organization” with three series of parallel spaces symmetrically aligned around the center.39 This symmetry is sometimes perfect but more often inverted, with two larger rectangular spaces/rooms in opposite corners; this latter appears in many examples from the Fayum (figure 3.3). Together with the square plan and the massiveness of the architecture, this tripartite organization is one of the main identifying features of the tower house. Any plan that deviates from this tripartite composition may be a multistory house, but it is no longer strictly speaking a tower house.
  • – All excavated examples include a massive staircase in one of the corners, covering 12 to 20 percent of the ground-level surface. For the best-preserved examples, we can restore a staircase with three or four flights of steps (figures 3.3, 3.4, and 3.6). In most cases, especially those with the “cellular foundations” arrangement, this staircase is only identifiable at the foundation level as a solid base in one corner (figures 3.2, 3.4, and 3.6) or as a set of small rectangular spaces (either one space, two parallel spaces, or three in a U shape) around a massive core (figures 3.3, 3.4, 3.5, and 3.6). These spaces often served as underground loft cellars, located under the stairs and accessible by hatches on the landing.
  • – The opening of the house unit onto the outside is limited. When an entrance is preserved, it is always a single, centered door on one side: generally, on the façade overlooking a street or a courtyard separating the house from the street, as at Tuna el-Gebel (figure 3.5).40 Because of the height of the massive infrastructure, the ground floor was always significantly raised above the outside surface and the front door is always significantly higher than street or courtyard level, requiring an external stairway (figure 3.9).41
  • – The tripartite layout of the basement spaces reflects the layout of the rooms for all the floors above. The central axis corresponds always to the location of the main entrance, which led to an entrance/reception room, the so-called vestibule.42 This vestibule typically leads to a narrow corridor and/or an axial room at the end. On either side of the central axis, the two lateral rows of basement spaces underlie in general three rooms: one large and one small room on one side, and a large room and the stairwell on the opposite. The access to the stairwell is always directly to the right or left of the entrance room (figures 3.3, 3.5, and 3.6). This plan forms a homogeneous composition of spaces with a simple circulation from one room to another.43

The foregoing descriptions apply to almost all excavated tower houses, although some special cases also exist. At Tuna el-Gebel and Elephantine, a few tower houses also featured a second contiguously attached structure, perhaps of later date (figure 3.6). This lateral addition provided a way to extend the floor space without adding another upper floor. Over time, the standardized plan of these tower houses remained very consistent, but they became progressively smaller: Late Period examples have an average side length of fifteen to thirty meters, compared to ten to twelve meters for Ptolemaic examples. This reduced footprint implies a lower elevation, with accordingly fewer stories.

Figure 3.7. Two panels showing the level of adjustment of the concave courses of mud bricks on the “maison centrale” at Tell Edfu in an image on the left, and a schematic of the distribution of weights and forces in a tower house type structure on the right.

Figure 3.7.Level of adjustment of the concave courses of mud bricks on the “maison centrale” at Tell Edfu and sketch of the distribution of weights and forces in a tower house type structure. (Photos by G. Marouard, sketch modified after Goyon et al. 2004, Fig. 110–3.)

Figure 3.8. A set of panels showing images of vaulted cellars and domed silos built within the underground spaces of tower house foundation levels (top left and right side) and schematic diagrams (bottom left).

Figure 3.8.Vaulted cellars and domed silos built within the underground spaces of tower house foundation levels. (Drawing by G. Marouard, photos after Davoli 1996, Fig. 47; Husselman 1979, Pl. 35a; Hadji-Minaglou 2007, Photo 117; Bruyère 1937, Pl. XIII-2.)

Of all known Greco-Roman-era tower houses, about 95 percent are from the Ptolemaic Period and built between the late fourth century and the second half of the second century BCE.44 Gradually, after the end of the second century BCE, significant changes can be seen in urban and domestic traditions, as clearly demonstrated at Tebtynis.45 After that date, domestic neighborhoods still contained several forms of multistory houses, but these were no longer strictly speaking tower houses according to our criteria: they had significantly smaller footprints and much more varied plans. Settlement plans now featured insula patterns with multiple types of multistory dwellings, which made more efficient use of the available urban space. The transition to the Roman era marks the development and the prevalence of a completely new, and much better known, layout for residential neighborhoods, as seen at Tebtynis, Soknopaiou Nesos, and especially Karanis, where the Ptolemaic tower house, as defined above, is totally absent.

The tower house archetype becomes much rarer in the early Roman Period, which provides fewer than 5 percent of all known examples. This form survives only in a few much larger buildings, whose dimensions are closer to the original Late Period structures. Only three examples are known, all from the Fayum: one at Dimeh (House II-201: 17 m x 19 m)46 and two at Tebtynis (House 2400-III: 13.50 m x 16 m and house 2800: 17 m x 18.60 m).47 All three seem to have been constructed during the Augustan Period and were used throughout most of the first century CE. The rareness and atypicality of these structures, their isolated position within settlement landscapes otherwise characterized by small multistory houses, and their close proximity to a sanctuary (Tebtynis) or processional pathway (Dimeh) create considerable doubt about their domestic function. These large Roman tower houses might perhaps have functioned as collective dwellings for multiple families/households (synoikia), or might have served nondomestic (administrative or official) purposes.48

Figure 3.9. An image of courtyard ruins with perpendicular staircase and main staircase, with courtyard floor level and underground space labeled with arrows.

Figure 3.9.Courtyard, perpendicular staircase, and main entrance to the tower house TG2012.K6 at Tuna el-Gebel. (Images courtesy of M. Flossmann, LMU excavation project at Tuna el-Gebel.)

Outside the House: Access, Domestic Courtyards, and Circulation

As noted above, the front door of the Ptolemaic tower house was never level with the external street or domestic courtyard, and an exterior access stairway with a single flight of steps was necessary. Generally, only the foundation of this stairway survives (figures 3.3, 3.4, and 3.5), but several examples indicate two solutions for its layout: either centered on the main doorway, or offset to its side. This arrangement varied depending on the immediate environment. If the street or courtyard was wide enough, people chose a staircase centered on the doorway, to make a more monumental and ostentatious main entrance (figure 3.9). This option often included two platforms flanking the stairs, creating a sort of high entrance podium on the main façade.49 More frequently, an offset location was preferred (figures 3.3, 3.4, and 3.6) in order to avoid an overly long or steep stairway and to minimize encroachment onto exterior spaces, especially public or semipublic streets or spaces.

All the structures excavated or recognized by geomagnetic survey have freestanding facades. This is another essential feature of the Ptolemaic tower house. No two examples have contiguous facades, back to back against each other; the tower house is always isolated from the neighboring domestic unit, whether it is another tower house or not (figures 3.4 and 3.5). Only the walls of their own or adjacent domestic courtyards lean against the building.

Because of their subsequent destruction and leveling, excavated tower houses are mostly preserved only at the foundation level, but external domestic courtyards are always the best-preserved parts of these units. These were spaces for daily activities: primarily food processing (grain milling), preparation, and cooking (bread ovens), but also temporary storage (silos and storage bins), agricultural work, small-scale craft production, and small livestock husbandry. The courtyard, whatever its size, has only a small and a single exterior access. Whenever it is not located in front of the main entrance façade but on one side and/or behind the house, this space usually—and curiously—lacks direct access to the house; instead, it has its own unique entrance that opens directly onto the street or exterior space. The courtyard often seems to be used as an intermediate access space. Whenever the house entrance opens onto a courtyard rather than the street, this space—reserved for daily activities, and consequently more exposed to interaction with the outside world or other households—served as a transitional entrance, a buffer zone protecting the more private house interior.50

Peripheral courtyards were probably included in the original plan of the house when the urban pressure was still low. At that point, the rule seems to have been “first-come, first-served.” In the case of Tuna el-Gebel (figure 3.5) or the first phase of Hellenistic settlement at Tebtynis (figure 3.4), where the built environment initially provided little to no constraint, the courtyard can be large—more than two to three times larger than the footprint of the house itself—multipartite, and multifunctional. These courtyards could encompass not only daily life activities but also many professional and craft activities. They may also reflect attempts to reserve additional building space in order to enlarge or add another unit in the future.

In other cases, such as at Tebtynis51 or Buto,52 the courtyard was not part of the original construction, but was opportunistically created at a later time by appropriation of semipublic or public space: often by closing a street, alley, or any kind of empty adjacent space (figure 3.4).53 This solution, usually associated with denser settlement and higher urban pressure, profoundly changed neighborhood circulation patterns by forcing pedestrians to sometimes bypass a large block of agglutinated buildings and courtyards instead of moving freely between them.

A Typical Organic Urban Organization Associated with Tower Houses

We can analyze the pattern of such residential areas based on multiple Late Period through Ptolemaic sites in the Delta, such as Buto,54 Tell el-Balamun (figure 3.2),55 Tell Dafana,56 and Mendes.57 More limited evidence also comes from the early Ptolemaic sectors at Tebtynis (figure 3.4) and Tuna el-Gebel (figure 3.5).

These domestic quarters show a very characteristic organization: the pre-Roman tower house never appears alone but within a dense urban landscape of several dozen similar units. Such neighborhoods feature a tight network of vertical buildings, but all are physically separated from each other: either by adjoining domestic courtyards, or by undeveloped spaces whose widths range from two meters to more than five meters. These latter are mostly public or semipublic circulation spaces: streets, small squares, alleys, or dead ends. At least, there is always a very narrow interstitial space, about one meter wide, reserved by the builders: a kind of ambitus ensuring that the facades of two houses never touch each other directly. Tower houses are thus freestanding on all four sides. The absence of joint facades would have reduced problems of contiguity and constraints of joint ownership between two neighboring buildings. Geomagnetic surveys in Tuna el-Gebel suggest that tower houses have at least two or even three facades overlooking a street or a circulation area, and one to two facades facing a courtyard (figure 3.5).58 This freestanding position is an essential feature of Ptolemaic tower houses and a major difference from later multistory houses. With the higher diversity of house forms (with rectangular, I-, L-, or T-shape), especially during the early Roman Period, most of these later multistory houses shared at least one or two contiguous facades with adjacent buildings. This evolution coincides with the development, since the end of the second century and during the course of the first century BCE, of a different urban fabric with several units grouped and imbricated with courtyards into insulae. Examples appear at Dimeh, Dionysias, Tebtynis, and Karanis, which is the emblematic example of this later organization.59

Tower houses and their typical neighborhood configuration therefore reflect an indigenous Egyptian tradition. In this urban landscape, the lines and perspectives are short, and the directions of streets are often irregular and suddenly changing, producing a dense, complex, and obscure network of alleys and dead ends. Because of the quadrangular shape of the house and surrounding courtyards, the street pattern is generally orthogonal, but it is not orthonormal, nor following any master plan. House facades are often significantly misaligned, confirming that no strict grid has been imposed. Naturally, some larger axes exist to facilitate general circulation within the neighborhood, especially when it is located next to a major religious facility (a dromos or a processional path, e.g. at Tuna el-Gebel). But within the residential area itself, no circulation hierarchy is clearly distinguishable. There is no sign of strict division and regulated distribution of buildable land, or any preconceived plot, grid, or standardized insulae. The urban pattern is not prescribed or constrained. Instead, it is the square shape of the house itself—and the progressive, probably rapid accumulation of similar buildings and adjacent courtyards—that created the alignments, loose orthogonality, and organic evolution of the urban network.

Far from the common stereotype of Hellenistic town planning, these neighborhoods, as revealed by the archaeological data, had neither rigorously defined insulae nor networks of preplanned orthogonal streets. Such layouts become more perceptible only later, as we see at Tebtynis, Soknopaiou Nesos, and Karanis in the course of the first century BCE. The colony at Philadelphia, which was built according to a Hippodamian grid, is an exception and should no longer be seen as a norm. It is important to note that the only domestic installation recorded for this site (figure 3.3) corresponds to the plan of a Ptolemaic tower house, suggesting a probable mixture of Egyptian and Greek genres in this foundation.60

The omnipresence of such a traditional and organic pattern in the early phases of the new Fayum settlements demonstrates that this Egyptian tradition of housing and settlement layout proved well suited for colonizing previously nonurbanized areas. Rather than precise town planning rules, it is likely that codes of “good neighborliness” governed relationships of proximity and conditioned the establishment of a new house in the existing landscape. By avoiding shared facades and creating freestanding elevations, builders could maximize daylight and air intake on all sides of the house. As the slope of the external walls increased on the higher levels, the gap between the facades of neighboring houses also gradually increased, giving the upper floors better ventilation, better lighting, and more privacy.

The Vertical Development of the Tower House: Which Sources Are Reliable?

Archaeological excavation provides very little information about the upper elevation of the tower house. The majority of examples are preserved only at the basement level. Only fragments of the ground floor survive, such as in Tebtynis, Bakchias, or Dimeh, where we sometimes see in situ entrance elements (thresholds, door sockets, door jamb traces), fragments of floors, or portions of the covers and trap doors of underground cellars and silos.

From an archaeological and architectural point of view, the validity of the Egyptianizing Roman imagery and mosaics showing Nilotic scenes, such as the much-overused example from Palestrina,61 seems very limited. Attempting any detailed reconstruction of the house and its architecture on the basis of these sources would be problematic and highly speculative.62 However, models and lanterns depicting tower houses can be considered much more trustworthy sources (table 3.1, figures 3.10 and 3.11).63 Their iconography provides important data on houses of the Hellenistic and early Roman Periods, sometimes including rare details about the architecture, construction technique, and the aspect of the upper elevation. Many remarkable examples appear in the Cairo Museum,64 Alexandria Museum, Louvre Museum,65 British Museum,66 and UCL Petrie Museum,67 as well as isolated objects in several German museums.68 These objects are made of either terracotta or a fine limestone (figures 3.10 and 3.11), and they were all produced and found in Egypt. Because they come from old excavations and lack secure archaeological contexts, the dating of these objects is often vague. Stylistic and technical comparanda suggest two major chronological phases. Carved limestone models seem to belong to the end of the Late Period and the early Ptolemaic Period, while the terracotta models are attributable to the late Hellenistic and early Roman Periods. These clay models were mass-produced in molds that could have created several dozen to hundreds of individual objects. But as it stands now, only two terracotta mold series have been identified (figure 11, M25 series and M8–M28 series).69

Table 3.1.Synthetic descriptive data for a selection of models of tower houses (selection from the catalog in Marouard 2010, vol. 2)


Figure 3.10. A set of panels showing images of limestone tower house models (top and bottom left) and a schematic layout of a tower house (bottom right).

Figure 3.10.Limestone tower house models M1 and M2 from the Egyptian Museum in Cairo, illustrating the different types of windows and a progressive evolution of the openings on the different floors. (Figure by G. Marouard, lower images by the author, upper images after Husselman 1979, Pl. 12a; Husselman 1979, Pl. 61b; Hadji-Minaglou 2007, Photos 124–25.)

Figure 3.11. A set of panels with images of tower house models in limestone or terracotta from the Ptolemaic and early Roman Periods.

Figure 3.11.Selection of tower house models in limestone or terracotta from the Ptolemaic and early Roman Periods. (Photos by G. Marouard, models M8 after Weber 1914, Pl. 41/467, and M13 after Petrie 1910, Pl. XXXVIII/6.)

Their dominant function, accounting for nearly 60 percent of the examples, was as lanterns or lamp holders. An empty space in the center or at the base would have held a small oil lamp, as evidenced by residual traces of lampblack on the terracotta models or reddened spots on the limestone examples. The internal cavity was accessible from the rear of the model (e.g. M1, M2, M6, M8, M20, M21, M28) or through an opening in the front door on the main face of the object (e.g. M5, M25). Openings at the doors and windows animated the interiors of these representations and, when lit, would have created the impression of human activity. These models were probably not used as a conventional means of lighting. Are they then purely decorative; amuletic objects that protected the house and household; or objects of domestic cult, which we might call “lamp shrines” or “portable altars”?70 It is premature to assign them any apotropaic function. However, the anachronistic hypothesis that they served as models for architects on house building projects is certainly to be discarded; in this context of vernacular construction, “an architecture without architect,” domestic structures were built according to a popular, common knowledge that did not need such support.

Unlike Pharaonic house models, especially the so-called soul houses or the Middle Kingdom wooden models that illustrated recurring activities within the house, the Greco-Roman-era examples are exclusively external, three-dimensional representations of the main façade or all four sides of the house. In their exclusive focus on architectural details, these images likely provide a direct, firsthand testimony and a primary local source for filling the gaps in our archaeological data. Indeed, several models show a relative fidelity to the original mud-brick domestic structures—which certainly surrounded their producers—and many architectural comparisons are possible with the Ptolemaic and Roman houses discovered at several archaeological sites, in particular those from the Fayum. These models are particularly valuable for understanding the vertical development of urban tower houses, enabling us to restore the upper parts of these structures and to question the organization of the summit parts and the upper terraces. They answer problems relating to the facades’ elevation, the treatment and organization of openings (either doors or windows), and the “ascending hierarchy” of floor levels.

We can summarize the chief recurring elements of these models as follows:

  • – The base regularly shows a high foundation level without an opening (e.g. M1, M2, M20, M21).
  • – Most examples have a square plan, rarely rectangular; only one example shows a L-shaped plan (M13).
  • – An average of 2.2 upper stories above the ground floor for complete examples.
  • – A single, axial entrance door, centered on the main façade, with door frames either in wood (often enhanced with red—an apotropaic color—to imitate the material) or stone, often featuring traditional Egyptian architectural features such as a cornice for the door lintel (similar to archaeological examples at Karanis or Narmouthis).71
  • – The entrance door is often elevated with a straight flight of steps positioned perpendicular (e.g. M1, M8, M18, M21, M28, M33) or parallel (e.g. M2, M20) to the main façade.
  • – When an internal staircase is present, it is positioned at an angle and usually indicated by the presence of very small windows (e.g. M2, M13, M30).
  • – A construction method with concave courses of mud bricks in the great majority of cases. Alternating courses of bricks can sometimes be identified as headers and stretchers (e.g. M1, M2, M3, M4, M5, M6, M19, M20, M21, M25, M28, M33).
  • – The ends of the through joists and beams that mark the floor location of the different levels can be often identified (e.g. M1, M2, M3, M6, M19, M20, M25).
  • – Types of openings, lower dormer windows to high claustra windows, are very close to those found in excavation, and the typology of openings on the models matches the typology of excavated examples (figure 3.10).
  • – More than half the models illustrate windows of T1 to T3 (small dormers with a horizontal crossbar, a very common type at Karanis),72 always located at the first floor (e.g. M1, M2, M6, M8, M9, M13, M19, M20, M21, M25, M28), just below the ceiling level, indicating its significant height on the walls of the first floor.
  • – The largest windows—mullion and brace, claustra, or trellis73—are invariably situated on the highest levels of the models (e.g. M1, M2, M3, M4, M5, M6, M8, M9, M13, M18, M20, M21, M25, M28, M30, M33).74
  • – The top is flat-roofed or partly occupied by a terrace surrounded by a wall (e.g. M2, M3, M6, M21), sometimes with a small room (M30) that may correspond to the landing level at the top of the staircase, which had to be protected and roofed.

All these models give us valuable indications of what is undoubtedly the essence of the tower house: its vertical development, with functions and destinations that probably changed gradually on the different floors. In contrast to the introverted ground floor, closed and dark with small dormer windows placed high in the walls, are the more open upper floors, much better lit, better ventilated, and less constrained by the opening easements with the surrounding houses.75 The upper parts of the models also reveal a more generally open top floor, a sort of piano nobile with the largest windows, even ornamental, usually high rectangular windows with claustra or trellis (figure 3.10).

This vertical development can be compared to contemporary domestic examples from Yemen, as in Shabwa.76 In parallel with the gradual opening of the floors, we may wonder about a possible vertical shift in the function of the Egyptian tower house, the comfort or hierarchy of the spaces, and even a possible social gradation toward the higher levels. Although caution is needed when comparing multistory Egyptian and South Arabian houses, the piano nobile which marks the upper part of the Egyptian tower house models could be equivalent to the main rooms, such as the mafraj (floor of the men) or the diwān (stateroom and reception room of the head of the family), which always crown the top of the Yemenite tower houses.

Based on the examples available, vertical domestic structures appear in many different settlement types: not only major urban sites such as provincial capitals, but also secondary agglomerations or small agricultural villages in the Delta and Fayum. The original impetus for this phenomenon was likely the urban density and the hydrological determinism that especially affected settlements in Lower Egypt and the Nile Valley. There, the multiplication of upper floors represented a solution to an urban perimeter whose boundaries were naturally restricted, and regularly threatened, by the annual Nile flood. The area of buildable land was not expandable unless it was drained and artificially reclaimed—by polderization of the marshes—from the outskirts of the original, natural limits of the tell and gezira.

The process of verticalization also rapidly amplified under pressure from an urban population that exploded in some regions over the second half of the first millennium BCE (both from demographic increase and/or the consequences of exceptional floods). This building type then became more geographically widespread with the founding of new settlements—such as on the Fayum fringes—in connection with the agricultural expansion of the early Ptolemaic Period. In these new settlements, the use of traditional tower houses and their distinctive associated urban layout provided an effective response to the necessity (or requirement) to save the maximum of available building space and land. This choice also helped prevent, at least for a while, settlements’ encroachment onto surrounding agricultural areas, a problem that could pose a significant threat on the periphery of the oasis, where the maximal extension of cultivable land and agricultural profitability was probably a higher priority than urban expansion.

If the peripheral courtyard often seems to mark the thin line between the household sphere and the outside, the house itself also seems to illustrate—especially according to the evidence of model tower houses—a bipartite opposition between a lower part that was closed, folded back into itself, and more protected from the outside, and an upper part that was much more private and relatively inaccessible, but paradoxically more open to the outside. Therefore, it is likely in the missing upper levels of the Egyptian tower house that we must imagine some of the most comfortable, important, and private living spaces, perhaps differentiated according to position/rank in the family unit or gender.

With more than half or even two-thirds of the house missing, we should not expect archaeological excavation to answer these questions of the functions of the upper floors. They must have housed those functions that we generally do not see in the lower and basement areas, which are dominated by everyday life household activities pertaining to the kitchen, storage, and storerooms, as well as perhaps reception. On the first floor, the small dormer windows placed high in the walls—at the level of the ceiling, a location higher than a man’s height—preserved household intimacy, maintained cool daytime temperatures, attenuated external nuisances (noise, prying eyes, heat from the street, smoke from the courtyard), deterred thieves, and prevented for some time at least the consequences of sand accumulation and gradual rise of street levels.77 Conversely, the higher parts—which were much more open, conveying more daylight and views during the day and more freshness and ventilation at night—were a priori better as sleeping areas and private spaces for social events, meetings, and reception of guests. We may see here a vertical hierarchization, in which the most private spaces occupied the upper parts, the farthest from the ground, whereas on the ground the public-private border remained quite thin. In Greek papyri, multiple references locate the symposion, the andron, or the bedrooms (akkubiton, koiton) in the tower or the upper floors of the house, just below the roof terrace or even on the terrace itself.78 In the Zenon archives, bedrooms also appear as very neat rooms, well-lit with elaborate and painted windows or lattice windows, which the models only locate in the highest parts of the house.79

Archaeology suggests that the tower house, a very characteristic type of multistory dwelling, remained the preferred form throughout much of the Hellenistic Period, with significant long-term changes in size but only small variations in plan. However, in the organic urban pattern that resulted from the use of this house type, the house footprint was generally inextensible. If no wide courtyard space existed next to a house, or if that space was insufficient, the only way to expand was to add another floor or to invest in open areas and adjacent streets—an extension into public space that was made possible by a very thin border between the external collective sphere and the internal private domain. Although these houses initially proved well adapted for colonization, as the early Fayum examples suggest, they seem to have become much rarer and then to dramatically disappear after the end of the second century BCE. Replacing them are more modest, although still multistory, houses that gradually lead their neighborhoods into a new organization around insulae. The tower house subsequently appears only in very isolated cases in early Roman urban contexts, in the form of large constructions, perhaps for collective use.

Notes

1House of Djehutynefer in TT104, various representations in TT23 or TT254, on Nakht papyrus (BM10411), and several fragmentary Amarna-period talatat at Karnak (Spence 2004).

2This terminology is borrowed from the “casemate foundation-platform” buildings regularly described since the 1970s (Spencer 1979; Spencer 1999; Leclère 2008, 645–54; Malecka-Drozd 2014, 76–80).

3Hartung et al. 2003, 263–66, fig. 1, Pl. 42; Hartung et al. 2007, 160–62, fig. 1, Pl. 20; Hartung et al. 2009, 170–72, fig. 1, 35, Pl. 30.

4Herbich and Spencer 2006, 16; Spencer 2008, 104–9, fig. 11.1. Another group of houses was recently discovered at Tell el-Iswed (Herbich 2011, 235, fig. 4; Midant-Reynes and Buchez 2014, 30–34, fig. 24).

5See Thomas (chapter 9, this volume) and current work by the British Museum team available online: https://www.britishmuseum.org/research/online_research_catalogues/ng/naukratis_greeks_in_egypt.aspx

6Leclère 2008, 645–54.

7Leclère and Spencer 2014, Pls. 10–14; Spencer 2016; Marouard 2012, fig. 5.

8Petrie 1888, Pl. XVII; Marouard 2012, fig. 5–3.

9Adam 1958, Pl. X.

10Wilson 1982, Pl. II; Marouard 2012, 129, fig. 5–1; Marouard 2014, fig. 5.

11Redmount and Friedman 1995, 70–76, Figs. 14–16; Morgenstein and Redmount 1998, 133, fig. 2.

12Edgar 1906, 209, fig. 2; Marouard 2014, fig. 5.

13Mumford 2002, 19–21; Marouard 2014, fig. 5.

14Leclère 2008, 211.

15It seems preferable to privilege the term cellular foundation, Marouard 2014, 106n3. A “casemate” designation should not be used for civil installations, as it derives from the technical vocabulary of military architecture and from the erroneous interpretation as fortresses of the large cellular constructions excavated within several sanctuaries in the Delta at Tanis, Naukratis, Tell Dafana, and Tell el-Balamun: Leclère 2008, 630–40.

16Marouard 2014, 106–8, fig. 2.

17Ballet et al. 2011, 80–82; Marouard 2014, 113–16, fig. 6.

18Marchi 2014, 85–104.

19Lehmann 2012, 29–31; Lehmann 2014, 57–68; Marouard 2014, 121, fig. 11.

20Marouard 2012, 130–31, fig. 6.

21Piacentini 1995, 11–23, fig. 1–15; Davoli 1996, 41–49, 54–58, figs. 1, 2, 32–54 (Houses VIII and XXV).

22Boak 1935, 17–18, 19–20, Pl. XII/fig. 23, Plans X, XIII, XIV (Houses IV-401 et IV-402).

23Husselman 1979, 10, 13, 22, 33, 40, Maps 5, 8 (Houses E102 et D313).

24Hadji-Minaglou 2007, 168–70, Figs. 78–80; Hadji-Minaglou 2014; Marouard 2012, 128, fig. 3; Marouard 2014, 115, 116, 123, fig. 11–4.

25Marouard 2012, 131–32; Marouard 2014, 116.

26See the archaeological reevaluation proposed in Marouard 2017.

27Flossmann-Schütze 2013, 4–11; Flossmann-Schütze 2014, 9–31; Fassbinder, Khüne and Flossmann 2015; Flossmann 2020.

28Flossmann-Schütze 2014, 14.

29Lauffray 1995, 311–13, 321–26, fig. 6–8, 18 (House A and house D, ca. mid-second century BCE)

30Hölscher 1934, Pl. 9–10; Marouard 2014, 116, fig. 7.

31Bruyère et al. 1937, 5–11, 87–92, fig. 4–9, 40, Plan IV; Michalowski et al. 1950, 114, 152–54, Plans IV–V; Marouard 2012, 125, figs. 1–12/13; Marouard 2014, 116, fig. 7.

32Dreyer et al. 2008, 78–86, fig. 4–6 (House K19, ca. late third century BCE to Ptolemy VI-VII). For observations on tower houses at Elephantine, Arnold 2003, 172–75.

33Husson 1983, 248–52, 257–67. According to Husson, the term pyrgos as used for a tower house—if this term really describes a domestic construction on a regular basis, and not only a high and narrow tower with various possible functions in addition to a domestic one—has to be differentiated from the house with a tower (or two) and from the multistory house with two or maybe three levels.

34Marchi 2014.

35Flossmann-Schütze 2014, 16; Hadji-Minaglou 2014, 50, table 1.

36E.g., house 7500 at Tebtynis, whose walls are 1.80 meters thick at the foundation level and 1.40 meters thick at the ground floor, Hadji-Minaglou 2014, 48.

37Arnold 2003, 166–68, Table 11; Hadji-Minaglou 2014, 38.

38Boak 1935, 18, Pl. XII/fig. 23, Plans X, XIII, XIV.

39Marouard 2010, 350–61; Marouard 2012, 125, 127; Marouard 2014, 117, 119; Flossmann-Schütze 2014, 18.

40Flossmann-Schütze 2014, 14; Fassbinder, Kühne and Flossmann 2015, 279, fig. 2. At Tuna el-Gebel, all entrances are located on the south or the east side of the houses, avoiding the prevailing winds from north and west.

41E.g., house B-1100 at Tebtynis: Hadji-Minaglou 2014, 44.

42Axiality of the entrance space is a characteristic of the Hellenistic-period houses at Tebtynis: Hadji-Minaglou 2014, 50.

43For parallels and ethnographic comparisons, see examples of tower houses from Yemen: Darles 1998; Breton 1998a; Breton 1998b.

44Marouard 2010, 361–63, Figs. III-25–III-27. Data collected before 2010 indicated 85 percent but excavations conducted since that date take this estimate to at least 95 percent.

45Hadji-Minaglou 2007, 170, Figs. 78 and 79.

46Boak 1935, 10–13, Figs. 2–3, 8–12, Plans III, IV, V, XI.

47Hadji-Minaglou 2007, 139–47, 179–82, Figs. 66–68; Hadji-Minaglou 2014, 36–40, fig. 2–9. Compared to the Ptolemaic tower houses, these larger Roman examples could correspond to the pyrgos from contemporary Greek papyri: seemingly a habitable urban tower, if indeed a purely domestic function can be attributed to this term (Nowicka 1970, 53–61; Husson 1983, 248–51; Hadji-Minaglou 2007, 182; Hadji-Minaglou 2014, 35).

48Husson 1983, 263, 265, 271–75. About synoikia, Husson mentions a “rental house divided into several apartments.”

49Fassbinder, Kühne and Flossmann 2015, 279, fig. 2.

50See further Davoli (chapter 1) and Simpson (chapter 2).

51Hadji-Minaglou 2007, 95, 99, 104, 170, Figs. 46, 47, 81, 82; Marouard 2014, 124. On encroachment and interaction between the house/courtyard/private sphere and public realm, see Marouard 2008, 125–26, fig. 4.

52Marouard 2014, 123–24, fig. 12.

53See also Davoli (chapter 1) and Simpson (chapter 2). We have no information about the solutions and the location (inside the house or on the rooftop terrace?) that these households used for performing daily domestic activities before the late addition of a domestic courtyard.

54Marouard 2012, 129, fig. 4; Marouard 2014, 106–8, 121, fig. 2.

55Spencer 2016.

56Leclère and Spencer 2014, Pls. 10 and 12.

57Marouard 2012, fig. 5/1.

58Flossmann-Schütze 2014, 14, Figs. 9–10.

59See in particular the evolution of the area east of Soknebtynis Temple: Hadji-Minaglou 2007, Figs. 78–79.

60Marouard 2012, 129–31, fig. 6; Marouard 2014, 116, fig. 7.

61For a study of the Nile mosaic of Palestrina at Praeneste, see Meyboom 1994. For comprehensive studies on Nilotic scenes, see Versluys 2002 and Barrett 2019.

62See e.g. Nowicka 1969, 17–20; Lehmann 2021, 6.

63This chapter presents only a selection of nineteen of the most interesting pieces from my unpublished dissertation: Marouard 2010, Vol.2, Annexe 2, 2–44.

64Engelbach 1931, 129–30, Pl. III; Marouard 2014, fig. 9.

65Dunand 1990, 333, #1009; Pillet 1940, 27–30; Marouard 2014, fig. 8. Since 2020, the four models from the Louvre Museum discussed in this paper are available in the online catalogue:

  • M6 = E11886 (terracotta, https://collections.louvre.fr/en/ark:/53355/cl010007912),
  • M20 = E11885 (limestone, https://collections.louvre.fr/en/ark:/53355/cl010007911),
  • M21 = E32572 (terracotta, https://collections.louvre.fr/en/ark:/53355/cl010036099).

66M28 = E32571 (terracotta, https://collections.louvre.fr/en/ark:/53355/cl010036098).
Limestone models M3 = EA2462 (https://www.britishmuseum.org/collection/image/505780001) and M19 = EA 68816 (fragmented, from Naukratis, https://www.britishmuseum.org/collection/image/1329992001).

67Several house models made of limestone, M11 = UC14513 (https://collections.ucl.ac.uk/Details/collect/20069) and M13 = UC33426, or made of terracotta, M16 = UC50613 (https://collections.ucl.ac.uk/Details/petrie/56218) and M18 = UC50582 (https://www.ucl.ac.uk/museums-static/digitalegypt/house/roman.html).

68Weber 1914, 255, Pl. 41/467; Ricke 1966, 119–23, Pl. VII; Marouard 2014, fig. 10; Fischer 1994, 433, Pl. 125, # 1187.

69M25 models have been identified in Cairo (JE 26627, 26628, 26629), Alexandria (registration number unknown) and at the British Museum (EA18324). Model M8 from Berlin (14458) and M28 from the Louvre Museum (E32571, fragmented, not in exhibit) form another series.

70Thomas and Masson 2018, 10–11, fig. 12.

71Husselman 1979, Pl. 37b, Plan 8.

72T1, T2 and T3 from windows typology in Marouard 2010, 256–64, Figs. II-191–II-201.

73T6, T7 and T9 from windows typology in Marouard 2010, 267–75, Figs. II-214–II-227.

74Hadji-Minaglou 2007, 145, Photos 122–28, illustrate the only archaeological examples of such claustra windows found in the cellar B’ of early Roman tower house 2400-III at Tebtynis

75Marouard 2008, 123; Marouard 2012, 128; Marouard 2014, 124–25.

76Darles 1998, 20–21, n. 38; Breton 1998a, 67–68, 71.

77On sand and other environmental considerations, see further Davoli (chapter 1).

78Husson 1983, 36–37, 151–54, 268.

79Husson 1983, 153 (PSI 547, 9–21; P. Cairo. Zen. 59847, 48–54; P. Mich. Zen. 38, 18).

Works Cited

Adam, S. 1958. “Recent Discoveries in the Eastern Delta (Dec. 1950–May 1955).” Annales du Service des Antiquites de l’Egypt 55: 301–24.

Arnold, F. 2003. Elephantine XXX: Die Nachnutzung des Chnumtempelbezirks. Archäologische Veröffentlichungen 116. Mainz am Rhein: Verlag Philipp von Zabern.

Ballet, P., G. Lecuyot, G. Marouard, M. Pithon, and B. Redon. 2011. “Et la Bouto tardive?” Bulletin de l’Institut Français d’Archéologie Orientale 111: 75–100.

Barrett, C.E. 2019. Domesticating Empire: Egyptian Landscapes in Pompeian Gardens. Oxford: Oxford University Press.

Boak, A.E.R. 1935. Soknopaiou Nesos: The University of Michigan Excavations at Dime in 1931–1932. University of Michigan Studies Humanistic Series XXXIX. Ann Arbor: University of Michigan Press.

Breccia, E. 1933. “Fouilles d’Oxyrhynchos.” Le musée gréco-romain d’Alexandrie Volume II 1931–1932: 36–47.

Breton, J.-F. 1998a. “L’habitat à Shabwa: originalité et traditions régionales.” In Fouilles de Shabwa III, Architecture et techniques de construction, edited by J.-F. Breton, 467–73. Bibliothèque archéologique et historique 154. Beirut: Institut français d’archéologie du Proche-Orient.

Breton, J.-F. 1998b. “Les établissements antiques.” In Une vallée aride du Yémen antique. Le wâdî Bayhân, edited by J.-F. Breton, J.-C. Arramond, B. Coque-Delhuille and P. Gentelle., 127–94. Paris: Recherche sur les civilisations.

Bruyère, B., J. Manteuffel, K. Michalowski, and J. Ste Fare Garnot. 1937. Fouilles Franco-Polonaises Rapport I, Fouilles Franco-Polonaises de Tell Edfou I. Caire: Institut Français d’Archéologie Orientale.

Busch-Sperveslage, A. 1999. “Hausmodelle im ptolemäisch-römischen Ägypten.” In Architektur, Struktur, Symbol: Streifzüge durch die Architekturgeschichte von der Antike bis zur Gegenwart, edited by M. Kozok, 11–26. Festschrift für Cord Meckseper zum 65. Petersberg: Imhof.

Darles, C. 1998. “Étude typologique de l’architecture civile intra-muros.” In Fouilles de Shabwa III, Architecture et techniques de construction, edited by J.-F. Breton, 3–25. Bibliothèque archéologique et historique 154. Beirut: Institut français d’archéologie du Proche-Orient.

Davoli, P. 1996. “Lo scavo 1995.” In Bakchias III. Rapporto preliminare della campagna de scavo del 1995, edited by S. Pernigotti and M. Capasso, 9–78. Pisa: Giardini.

De Garis Davies, N. 1929. “The Town House in Ancient Egypt.” Metropolitan Museum Studies 1 (2): 233–55.

Desroches-Noblecourt, Chr. 1938. “Un modèle de maison citadine du Nouvel Empire (Musée du Louvre: n° E. 5357).” Revue d’Égyptologie 3: 17–25.

Dreyer, G., F. Arnold, J. Budka, D. Franke, F. Hoffmann, D. Keller, P. Kopp, S. Lippert, B. von Pilgrim, C. von Pilgrim, and D. Raue. 2008. “Stadt und Tempel von Elephantine 33/34/35. Grabungsbericht.” Mitteilungen des Deutschen Archaologischen Instituts Abteilung Kairo 64: 63–151.

Dunand, F. 1990. Catalogue des terres cuites gréco-romaines d’Égypte, Musée du Louvre, département des Antiquités Égyptiennes. Paris: Réunion des Musées nationaux.

Edgar, M. 1906. “Report on an Excavation at Toukh el-Qaramous.” Annales du Service des antiquités de l’Égypte 7: 205–12.

Engelbach, R. 1931. “Recent Acquisitions in the Cairo Museum.” Annales du Service des antiquités de l’Égypte 31: 126–31.

Fassbinder, J.W.E., L. Kühne, and M. Flossmann. 2015. “The Hellenistic Settlement of Tuna el-Gebel, Egypt.” Archaeologia Polona 53: 276–80.

Fischer, J. 1994. Griechisch-romische Terrakotten aus Ägypten. Die Sammlungen Sieglin und Schreiber, Dresden-Leipzig-Stuttgart-Tübingen. Berlin: Wasmuth & Zohlen.

Flossmann-Schütze, M. 2013. “Manhattan in der Wüste, Tierkult und Towerhäuser in Tuna el-Gebel.” aMun 46: 4–11.

Flossmann-Schütze, M. 2014. “Les maisons-tours de l’association religieuse de Touna el-Gebel.” In Les maisons-tours en Égypte durant la Basse Époque, les périodes ptolémaïque et romaine (Actes de la table ronde de Paris-Sorbonne, 29–30 Nov. 2012), edited by S. Marchi, 9–31. NeHet 2. Paris: Revue Numérique d’Égyptologie.

Flossmann-Schütze, M. 2020. “Die Siedlung am Ibiotapheion: Untersuchungen zur Lebenswelt einer Kultgemeinschaft im griechisch-römischen Tuna el-Gebel.” In Tuna el-Gebel—eine ferne Welt: Tagungsband zur Konferenz der Graduade School “Distant Worlds” vom 16. bis 19.1.2014 in München, edited by M. Flossmann-Schütze, F. Hoffmann, and A. Schütze, 189–208. Vaterstetten: Patrick Brose.

Goyon, J.-C., J.-C. Golvin, C. Simon-Boidot, and G. Martinet. 2004. La construction Pharaonique du Moyen Empire à l’époque gréco-romaine: Contexte et principes technologiques. Paris: Picard.

Hadji-Minaglou, G. 2007. Tebtynis IV. Les habitations à l’est du temple de Soknebtynis. Fouilles de l’Institut français d’archéologie orientale du Caire 56. Cairo: Institut français d’archéologie orientale.

Hadji-Minaglou, G. 2014. “Les maisons-tours de Tebtynis.” In Les maisons-tours en Égypte durant la Basse Époque, les périodes ptolémaïque et romaine (Actes de la table ronde de Paris-Sorbonne, 29–30 Nov. 2012), edited by S. Marchi, 33–56. NeHet 2. Paris: Revue Numérique d’Égyptologie.

Hartung, U., P. Ballet, F. Béguin, J. Bourriau, P. French, T. Herbich, P. Kopp, G. Lecuyot, and A. Schimtt. 2003. “Tell el-Fara‘in—Buto 8. Vorbericht.” Mitteilungen des Deutschen Archaologischen Instituts Abteilung Kairo 59: 199–267.

Hartung, U., P. Ballet, F. Béguin, J. Bourriau, D. Dixneuf, A. Von den Driesch, P. French, R. Hartmann, T. Herbich, C. Kitagawa, P. Kopp, G. Lecuyot, M.-D. Nenna, A. Schimtt, G. Cankardeş-Şenol, and A. Şenol. 2007. “Tell el-Fara‘in—Buto 9. Vorbericht.” Mitteilungen des Deutschen Archaologischen Instituts Abteilung Kairo 63: 69–165.

Hartung, U., P. Ballet, A. Effland, P. French, R. Hartmann, T. Herbich, H. Hoffmann, E. Hower-Tilmann, C. Kitagawa, P. Kopp, W. Kreibig, G. Lecuyot, S. Lösch, G. Marouard, A. Ner-Kopp, M. Pithon, and A. Zink. 2009. “Tell el-Fara‘in—Buto 10. Vorbericht.” Mitteilungen des Deutschen Archaologischen Instituts Abteilung Kairo 65: 83–190.

Herbich, T. 2011. “Geophysical Surveying in Egypt: Periodic Report for 2009–2011.” In Archaeological Prospection: 9th International Conference on Archaeological Prospection (Izmir September 19–24), edited by M.G. Drahor and M.A. Berge, 234–39. Istanbul: Archaeology and Art Publications.

Herbich, T. and A.J. Spencer. 2006. “Geophysical Survey at Tell el-Balamun.” Egyptian Archaeology 29: 16–19.

Hölscher, U. 1934. The Excavation of Medinet Habu. Vol. 1. General Plans and Views. Oriental Institute Publications 21. Chicago: University of Chicago Press.

Husselman, E. 1979. Karanis. Excavations of the University of Michigan in Egypt 1928–1935, Topography and Architecture, Kelsey Museum of Archaeology Studies 5. Ann Arbor, MI: Bell & Howell Information & Lea.

Husson, G. 1983. Oikia, le vocabulaire de la maison privée en Egypte d’après les papyrus grecs, Université Paris IV—Sorbonne Série papyrologie 2. Paris: Publication de la Sorbonne.

Lauffray, J. 1995. “Maisons et ostraca ptolémaïques à l’Est du Lac Sacré.” Cahier de Karnak X: 301–41.

Leclère, F. 2008. Les villes de Basse Égypte au 1er millénaire av. J.-C., BdE 144. Cairo: Institut français d’archéologie orientale.

Leclère, F. and A.J. Spencer. 2014. Tell Dafana Reconsidered: The Archaeology of an Egyptian Frontier Town. London: The British Museum.

Lehmann, M. 2012. “The City of Avaris after the New Kingdom.” Egyptian Archaeology 40: 29–31.

Lehmann, M. 2014. “Tower Houses in Tell el-Dab’a. The Late and Ptolemaic Period.” In Les maisons-tours en Égypte durant la Basse Époque, les périodes ptolémaïque et romaine (Actes de la table ronde de Paris-Sorbonne, 29–30 Nov. 2012), edited by S. Marchi, 57–68. NeHet 2. Paris: Revue Numérique d’Égyptologie.

Lehmann, M. 2021. “Tower Houses.” In UCLA Encyclopedia of Egyptology, edited by W. Wendrich. Los Angeles: University of California, Los Angeles, Department of Near Eastern Languages and Cultures. https://escholarship.org/content/qt6c57f675/qt6c57f675.pdf?t=qxvbxq.

Lewis, N. 1933. “‘H Πρώτη Στέγη in Houses of Several stories.” Classical Weekly 26: 171–72.

Malecka-Drozd, N. 2014. “The Emergence and Development of Architecture on Casemate Foundation Platforms in the Nile Delta.” Recherches Archeologiques 4: 69–96.

Marchi, S. 2014. “Les maisons-tours et édifices sur soubassement à caissons de Tell el-Herr.” In Les maisons-tours en Égypte durant la Basse Époque, les périodes ptolémaïque et romaine (Actes de la table ronde de Paris-Sorbonne, 29–30 Nov. 2012), edited by S. Marchi, 85–104. NeHet 2. Paris: Revue Numérique d’Égyptologie.

Marouard, G. 2008. “Rues et habitats dans les villes et villages de la chôra égyptienne à la période gréco-romaine (IIIe S. av.—IVe S. apr. J.-C.): quelques exemples du Fayoum.” In La rue dans l’antiquité. Définition, aménagement devenir (Actes du colloque de Poitiers, 2006), edited by P. Ballet, N. Dieudonné-Glad and C. Saliou, 117–28. Rennes: Press Universitaire de Rennes.

Marouard, G. 2010. “Archéologie, architecture et images de la maison urbaine d’époque hellénistique et romaine dans la chôra égyptienne.” PhD diss., University of Poitiers.

Marouard, G. 2012. “Les quartiers d’habitat dans les fondations et refondations lagides de la chôra égyptienne. Une révision archéologique.” In Grecs et romains d’Egypte. Territoires, espaces de la vie et de la mort, objets de prestiges et du quotidien (colloque SFAC, Paris, 2008), edited by P. Ballet, 121–40. Bibliothèque d’étude 157. Cairo: Institut français d’archéologie orientale.

Marouard, G. 2014. “Maisons-tours et organisation des quartiers domestiques dans les agglomérations du Delta: l’exemple de Bouto de la Basse Époque aux premiers Lagides.” In Les maisons-tours en Égypte durant la Basse Époque, les périodes ptolémaïque et romaine (Actes de la table ronde de Paris-Sorbonne, 29–30 Nov. 2012), edited by S. Marchi, 105–33. NeHet 2. Paris: Revue Numérique d’Égyptologie.

Marouard, G. 2017. “Completamente distrutte: Réévaluation archéologique de Philadelphie du Fayoum, Égypte.” In Essays for the Library of Seshat: Studies Presented to Janet H. Johnson on the Occasion of her 70th Birthday, edited by R.K. Ritner, 121–54. Studies in Ancient Oriental Civilization 70. Chicago: Oriental Institute of the University of Chicago

Meyboom, P.G.P. 1994. The Nile Mosaic of Palestrina. Early Evidence of Egyptian Religion in Italy. Religions in the Graeco-Roman World 121. Leiden: Brill.

Michalowski, K., C. Desroches, J., De Linage, and J. Manteuffel. 1950. Tell Edfou 1939, Fouilles Franco-Polonaises de Tell Edfou III. Le Caire: Institut français d’archéologie orientale.

Midant-Reynes, B., N. Buchez, A. Baher, G. Bréand, F. Briois, J. Cavero, A.-S. Coupey, M. De Dapper, N. Delhopital, R. el Hajaoui, A. Emery-Barbier, B. Fabry, S. Guérin, F. Guyot, C. Hochstrasser-Petit, J. Lesur, S. Marchand, M. Minotti, M. Ownby, I. Regulski, J. Robitaille, L. Torchy, Y. Tristant, F. Vinolas, and M. Wuttmann. 2014. Tell el-Iswid: 2006–2009. Fouilles de l’Institut français d’archéologie orientale du Caire 73. Cairo: Institut français d’archéologie orientale.

Morgenstein, M., and C. Redmount. 1998. “Mudbrick Typology, Sources, and Sedimentological Composition: A Case Study from Tell el-Muqdam, Egyptian Delta.” Journal of the American Research Center in Egypt 35: 131–33.

Mumford, G. 2002. “Reconstructing the Ancient Settlement at Tell Tebilla.” Bulletin of the American Research Center in Egypt 182: 18–23.

Nowicka, M. 1969. La maison privée dans l’Égypte ptolémaïque. Académie Polonaise des Sciences Bibliotheca Antiqua 9. Wrocław: Zakład Narodowy im. Ossolińskich.

Nowicka, M. 1970. “À propos des tours—πυργοι dans les papyrus grecs.” Archeologia 21: 53–62.

Petrie, W.M.F. 1888. Tanis. Part II: Nebesheh (Am)and Defenneh (Tahpanhes). Egypt Exploration Society Excavation Memoirs 4. London: Trubner & Co.

Petrie, W.M.F. 1909. Memphis I. British School of Archaeology in Egypt and the Egyptian Research Account 15. London: School of Archaeology in Egypt.

Petrie, W.M.F. 1910. Meydum and Memphis III. British School of Archaeology in Egypt and the Egyptian Research Account 18. London: School of Archaeology in Egypt.

Piacentini, P. 1995. “Lo scavo 1994.” In Bakchias II. Rapporto preliminare della campagna de scavo del 1994, edited by S. Pernigotti and M. Capasso, 11–27. Pise: Giardini.

Pillet, M. 1940. “Des verrous égyptiens modèles de maisons.” Revue d’Egyptologie 4: 27–43.

Redford, D. 1994. The Akhenaten Temple Project. Vol. 3. The Excavation of Kom el-Ahmar and Environs. Toronto: Akhenaten Temple Project.

Redmount, A., and R. Friedman. 1997. “Tales of a Delta Site: The 1995 Field Season at Tell el-Muqdam.” Journal of the American Research Center in Egypt 34: 57–83.

Ricke, H. 1966. “Ein Hausmodell im Kestnermuseum zu Hannover.” Zeitschrift für Ägyptische Sprache und Altertumskunde 93: 119–23.

Rondot, V. 2004. Tebtynis II. Le temple de Soknebtynis et son dromos, Fouilles Franco-Italiennes II. Cairo: Institut français d’archéologie orientale.

Spence, K. 2004. “The Three-Dimensional Form of the Amarna House.” Journal of Egyptian Archaeology 90: 123–52.

Spencer, A.J. 1979. “The Brick Foundations of Late Period Peripteral Temples and Their Mythological Origins.” In Orbis Aegyptiorum Speculum. Glimpses of Ancient Egypt: Studies in honor of H. W. Fairman (Festschrift Fairman), edited by J. Ruffle, G.A. Gaballa, and K. Kitchen, 132–37. Warminster: Aris & Philipps.

Spencer, A.J. 1999. “Casemate Foundations Once Again.” In Studies on Ancient Egypt in Honour of H. S. Smith, edited by A. Leahy and J. Tait, 295–300. Egypt Exploration Society Occasional Publications 13. London: The Egypt Exploration Society.

Spencer, A.J. 2008. Excavations at Tell Balamun 2003–2008. British Museum online report. http://www.britishmuseum.org/research/research_projects/excavation_in_egypt/reports_in_detail.aspx.

Spencer, A.J. 2016. “Tell Balamun: Outside the Temple Enclosure.” Unpublished, available online. https://www.academia.edu/38092394/Tell_el-Balamun_outside_the_temple_enclosure.

Thomas, R., and A. Masson. 2018. “Altars, Sundials, Minor Architectural Objects and Models.” In Naukratis: Greeks in Egypt, edited by A. Villing, M. Bergeron, G. Bourogiannis, A. Johnston, F. Leclère, A. Masson, and R. Thomas. The British Museum online website. https://www.britishmuseum.org/pdf/Thomas_and_Masson_Altars_sundials_models_architecture.pdf.

Versluys, M.J. 2002. Aegyptiaca Romana. Nilotic Scenes and the Roman Views of Egypt. Religions in the Graeco-Roman World 144. Leiden: Brill.

Viereck, P., and F. Zucker. 1926. Papyri, Ostraka und Wachstafelen aus Philadelphia im Fayum. Ägyptische Urkunden aus den königlichen Museen zu Berlin, Griechischen Urkunden 7. Berlin: Weidmannsche Buchhandlung.

Viereck, P. 1928. Philadelpheia, Die Gründung einer Hellenistischen Militärkolonie in Ägypten. Morgenland Beihefte zum Alten Orient 16. Leipzig: J.C. Hinrichs’sche Buchhandlung.

Weber, W. 1914. Die ägyptisch-griechischen Terrakotten. Berlin: Curtius.

Wilson, K. 1982. Cities of the Delta Part II: Mendes. Preliminary Report on the 1979 and 1980 Seasons. American Research Center in Egyptian Reports 5. Malibu, CA: Undena.

Annotate

Next Chapter
Part II
PreviousNext
Copyright © 2023 by Cornell University, All rights reserved. Except for brief quotations in a review, this book, or parts thereof, must not be reproduced in any form without permission in writing from the publisher. For information, address Cornell University Press, Sage House, 512 East State Street, Ithaca, New York 14850. Visit our website at cornellpress.cornell.edu.
Powered by Manifold Scholarship. Learn more at
Opens in new tab or windowmanifoldapp.org